Spacious apartment located in one of the most preferred areas of the capital - Borovo district and Bulgaria Blvd., a modern neighborhood of newly built buildings with excellent communication, both with the central part and with South Park and Vitosha Mountain. The apartment is part of the administrative-residential and commercial complex Casa Pineda - a luxurious building with a panoramic elevator, garages and parking spaces, built by the construction company KRIT in 2010.
In the vicinity of the property are primary school, fitness center, pharmacy, public transport stop, Mall Bulgaria and Bila are about 750 m away.
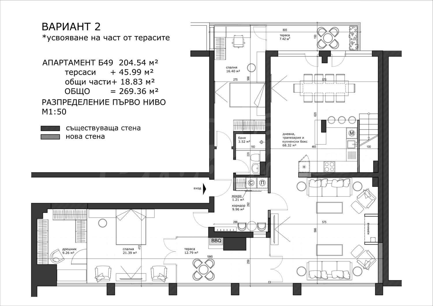
The apartment is located on the 9th and 10th floors and has a total area of 269.36 m2, which includes:
• area – 127.35 m2;
• terraces – 123.18 m2;
• parts of the common areas – 18.83 m2.
The apartment (see Option 1) has the following layout:
• On the first level there are 2 bedrooms, living room with dining room and kitchenette, bathroom with toilet and two terraces. The layout also provides storage/drying space, a recreation area and a barbecue.
• On the second level is the third bedroom with a closet, a bathroom with a toilet, an emporium and two terraces.
The architecture allows for alterations (see Option 2), for example the construction of a fourth bedroom with a separate spacious wardrobe, an additional bathroom with toilet, a separate wet room, the extension of the living area and the addition of a corner with a fireplace and sofas, thus the covered area it will be 204 m2 without the need for structural changes.
The property is sold complete according to Bulgarian State Standard:
• Entrance door - armored
• Floor – cement screed
• Walls and ceilings - gypsum plaster
• Flooring on terraces and balconies - granite tiles
• Aluminum joinery
• Fully constructed plumbing installation
• El. installations - fully built, dimensioned for air conditioning
• Heating by CHP or electricity
With the purchase of the property, it is possible to include an underground, independent garage with a maneuvering area and a warm connection to the building at a price of 33,000 euro.
The property has the following advantages:
• no chamfers;
• underground garages with hot connection to the entrance of the building;
• ground parking spaces available for rent;
• entrance from the courtyard with direct access by car;
• well-executed building with luxurious common areas and porter's room;
• panoramic elevator;
• finished arch. remodeling project;
• central heating or air conditioner;
• possibility of placing solar panels.
Viewings
We are ready to organize a viewing of this property at a time convenient for you. Please contact the responsible estate agent and inform them when you would like to have viewings arranged. We can also help you with flight tickets and hotel booking, as well as with travel insurance.
Property reservation
You can reserve this property with a non-refundable deposit of 2,000 Euro, payable by credit card or by bank transfer to our company bank account. After receiving the deposit the property will be marked as reserved, no further viewings will be carried out with other potential buyers, and we will start the preparation of the necessary documents for completion of the deal. Please contact the responsible estate agent for more information about the purchase procedure and the payment methods.
After sale services
We are a reputable company with many years of experience in the real estate business. Thus, we will be with you not only during the purchase process, but also after the deal is completed, providing you with a wide range of additional services tailored to your requirements and needs, so that you can fully enjoy your property in Bulgaria. The after sale services we offer include property insurance, construction and repair works, furnishing, accounting and legal assistance, renewal of contracts for electricity, water, telephone and many more.
For sale
Invalid offer
Maisonette aparment with panoramic terraces in "Borovo" District
Sofia, Borovo3-bedroom apartment with a wonderful view of the city and the mountains
Property features
Type of property
3-bedroom apartment, Large apartment, Two-level penthouse
Ref. No.
Sfa 48696
Area
269.36 m2 (net area: 250.53 m2 plus common parts: 18.83 m2)
Bedrooms
3
Condition
Bulgarian standard
Floor
9,10 of 10
Lift
yes
Furnishing
Unfurnished
Heating system
Air-conditioners / Central heating
Type of building
Brick-built
Garden
no
Year of construction
2010
Exposition:
East, West, South
Location
Sofia, BorovoLocal amenities
- Metro station "KRASNO SELO" - 1.2 km (14 min.) - Line No: 3
- Bus stop "BUL. GOTsE DELChEV" - 427 m (6 min.) - Bus No: 64, 304
- Trolleybus stop "20-TI DKTs" - 567 m (7 min.) - Trolleybus No: 2, 9
- Tram station "Zh.K. MOTOPISTA" - 171 m (3 min.) - Tram No: 7
- Kindergarten "TsDG Mariya Magdalena" - 307 m (4 min.)
- Kindergarten "2 ODZ Zvanche" - 514 m (7 min.)
- School "34 OU Stoyu Shishkov" - 338 m (5 min.)
- School "121 SOU Georgi Izmirliev" - 449 m (6 min.)
- College "Multitreyn" - 604 m (8 min.)
- University "Kolezh Po Menidzhmant" - 1.1 km (14 min.)
- Hospital "20-ti DKTs" - 611 m (8 min.)
- Hospital "Kardio Shans" - 774 m (10 min.)
- Medical center "Parva Detska Konsultativna Klinika" - 292 m (4 min.)
- Food market "Magazincheto" - 128 m (2 min.)
- Supermarket "Moyata Bakaliya" - 53 m (1 min.)
- Supermarket "Supermarket Borovo" - 114 m (2 min.)
- Marketplace "Pazar Borovo" - 863 m (11 min.)
- Bakery "fidler's" - 133 m (2 min.)
- Pet shop "casa De Animales" - 72 m (1 min.)
- Mall "Mol Balgariya" - 584 m (8 min.)
- Bank "eurobank Bulgaria Ad" - 100 m (2 min.)
- Bank "Rayfayzenbank (Balgariya) EAD" - 173 m (3 min.)
- Pharmacy "Apteka BG" - 58 m (1 min.)
- Postal service "Balgarski Poshti EAD" - 210 m (3 min.)
- Postal service "Ekont" - 469 m (6 min.)
- Hair-dresser "rustico" - 16 m (1 min.)
- Dry cleaner's - 88 m (2 min.)
- Beauty salon "made For Make-up" - 26 m (1 min.)
- Vet "Dobro Hrumvane" - 2 m (1 min.)
- Restaurant "Topli Dol" - 95 m (2 min.)
- Restaurant "Provans" - 100 m (2 min.)
- Cafe "Klasik" - 56 m (1 min.)
- Bar "pasha" - 86 m (2 min.)
- Fitness centre "Inerdzhi Spa I Fitnes" - 139 m (2 min.)
- Swimming pool - 974 m (12 min.)
- Sports pitch "the Gym" - 770 m (10 min.)
- Tennis court - 443 m (6 min.)
- Theatre "magic The Gathering" - 1.0 km (13 min.)
- Cinema "Arena Deluxe" - 632 m (8 min.)
- Spa centre - 888 m (11 min.)
- Park - 265 m (4 min.)
- Car park - 148 m (2 min.)
- Petrol station "OMV Balgariya OOD" - 207 m (3 min.)
- Car wash "OMV Balgariya OOD" - 228 m (3 min.)
- Car service - 211 m (3 min.)
- Church "Sv. Sv. Kiril I Metodiy" - 980 m (12 min.)
PUBLIC TRANSPORT
EDUCATIONAL INSTITUTIONS
MEDICAL INSTITUTIONS
SHOPPING
SERVICES
RESTAURANTS & BARS
SPORTS & LEASURE
NATURE & SIGHTSEEING
CAR SERVICES
PUBLIC BUILDINGS & INSTITUTIONS
REQUEST DETAILS
This offer is not valid
Please contact us and we will find other properties that match your requirements.
This offer is not valid
Please contact us and we will find other properties that match your requirements.
*/ ?>
FOR MORE INFORMATION
Property ref: Sfa 48696
When calling, please quote the property reference number.
