We present to you a 2-bedroom apartment in a large-scale complex of 16 independent, boutique buildings, which is located in one of the most rapidly developing and modern neighborhoods - Vitosha. The complex will be distinguished by high quality construction and lots of greenery. The gardens are filled with evergreens, deciduous and coniferous plants, creating a year-round green environment for the owners. The evergreen gardens and the overall landscaping of the complex filter the air, absorb harmful emissions and protect against solar radiation and urban noise.
The building is under construction with expected Act 16 mid-2024.
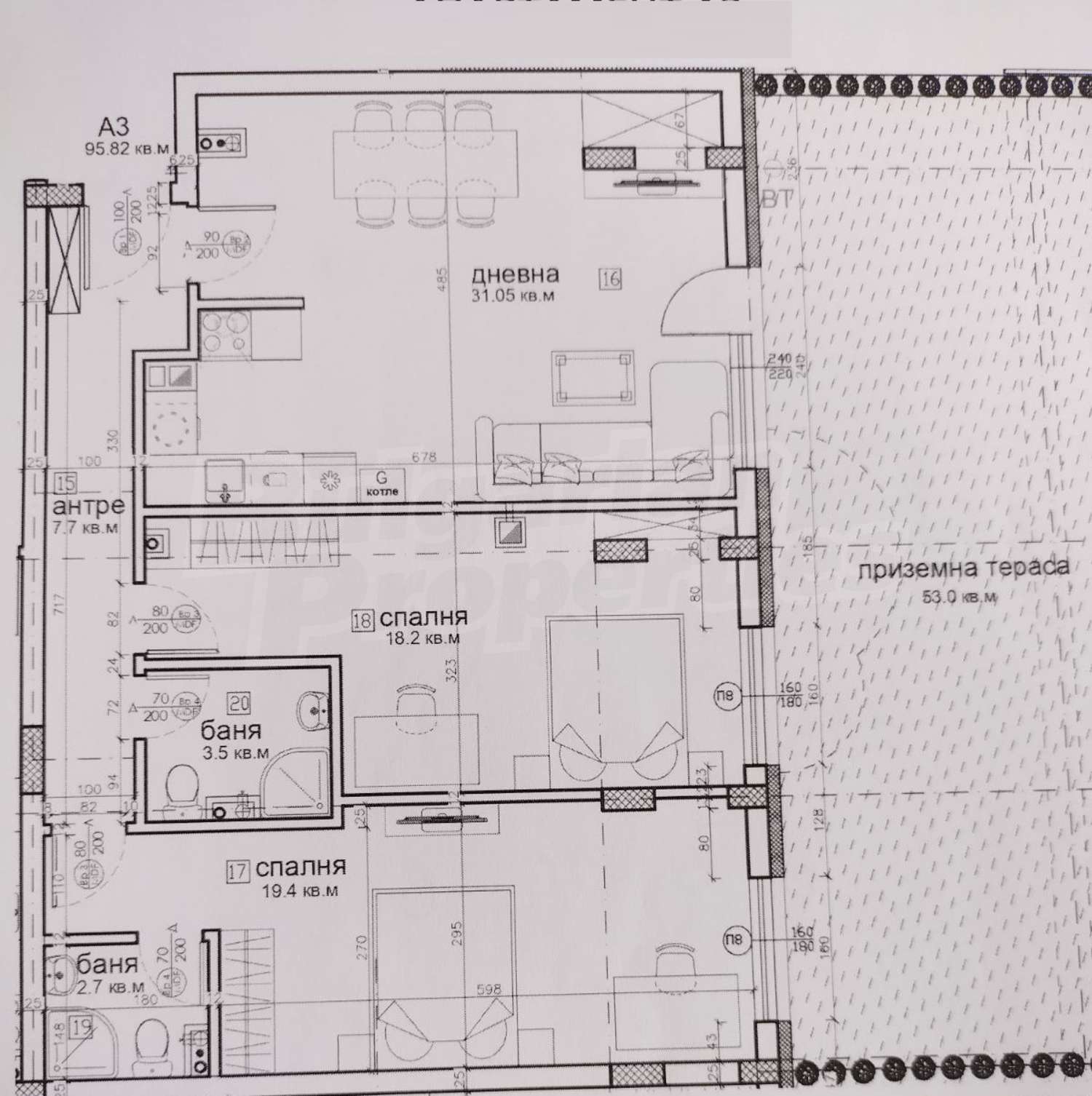
The apartment is located on the first floor with an area of 106.66 m2 (net area 95.82 m2 plus common parts 10.84 m2) and consists of:
• entrance hall
• living room with kitchenette
• two bedrooms
• two bathrooms with toilet
• garden with an area of 53 sq. m.
Great location:
• Excellent location in Vitosha quarter, on a quiet street with direct access to Simeonovski shose Blvd.
• Among the prevailing greenery at the foot of Vitosha Park
• Extremely fast access to strategic points from the city
• Near major thoroughfares
• Near Vitosha Nature Park
• A diverse selection of amenities and services located in the Studetski grad district
Vitosha Quarter provides easy and quick access to downtown Sofia, Vitosha Mountain, the Mladost and Dianabad neighborhoods. The area has excellent infrastructure. In the immediate vicinity are the big boulevards of the capital - Cherni Vrah, Simeonovsko Shosse, Southern Rainbow, through which access to all parts of the city is quick and convenient. The easy access to the Ring Road allows for quick connection to Ring Mall, Business Park, Ikea Shop, ATM Trakia and Struma ATM. All the necessary modern day-to-day supermarkets - Kaufland, Fantastico and Billa, shops, representative offices in the sphere of services and communications, banking offices, a variety of commercial services, popular establishments and restaurants are provided at short distances.
Viewings
We are ready to organize a viewing of this property at a time convenient for you. Please contact the responsible estate agent and inform them when you would like to have viewings arranged. We can also help you with flight tickets and hotel booking, as well as with travel insurance.
Property reservation
You can reserve this property with a non-refundable deposit of 2,000 Euro, payable by credit card or by bank transfer to our company bank account. After receiving the deposit the property will be marked as reserved, no further viewings will be carried out with other potential buyers, and we will start the preparation of the necessary documents for completion of the deal. Please contact the responsible estate agent for more information about the purchase procedure and the payment methods.
After sale services
We are a reputable company with many years of experience in the real estate business. Thus, we will be with you not only during the purchase process, but also after the deal is completed, providing you with a wide range of additional services tailored to your requirements and needs, so that you can fully enjoy your property in Bulgaria. The after sale services we offer include property insurance, construction and repair works, furnishing, accounting and legal assistance, renewal of contracts for electricity, water, telephone and many more.
For sale
Invalid offer
Two bedroom apartment with its own yard in a complex with lots of greenery in Vitosha district
Sofia, VitoshaTwo bedroom apartment in complex with beautifully landscaped spaces within walking distance to Fantastico and Kaufland shopping chains
Property features
Type of property
2-bedroom apartment
Ref. No.
Sfa 79317
Area
106.66 m2 (net area: 95.82 m2 plus common parts: 10.84 m2)
Bedrooms
2
Condition
Bulgarian standard
Floor
1 of 4
Lift
yes
Furnishing
Unfurnished
Heating system
Gas heating system / Air-conditioners
Type of building
Brick-built, New building
Garden
53 m2
Year of construction
2024
Exposition:
South/East
Location
Sofia, VitoshaLocal amenities
- Bus stop "HOTEL MAKSI" - 235 m (3 min.) - Bus No: 67
- Kindergarten "16 ODZ" - 1.1 km (14 min.)
- School "KRAMI - 98 EOOD" - 994 m (12 min.)
- School "ChTsDG" - 1.1 km (14 min.)
- Hospital "Vitosha SBAL Po Ortopediya I Travmatologiya" - 205 m (3 min.)
- Hospital "city Clinic" - 1.1 km (14 min.)
- Medical center "Mediko-dentalen Tsentar "Evrovita"" - 1.1 km (14 min.)
- Food market - 420 m (6 min.)
- Supermarket "Fantastiko" - 330 m (4 min.)
- Supermarket "kaufland" - 370 m (5 min.)
- Marketplace - 839 m (11 min.)
- Bank "Tsentralna Kooperativna Banka" - 660 m (8 min.)
- Pharmacy - 668 m (9 min.)
- Postal service "speedy" - 446 m (6 min.)
- Postal service "PTTS Sofiya 134-1734" - 650 m (8 min.)
- Dry cleaner's "dista" - 509 m (7 min.)
- Restaurant "Restorant Delfincheto" - 513 m (7 min.)
- Restaurant "Restorant Kashtata" - 536 m (7 min.)
- Cafe - 479 m (6 min.)
- Bar "chef D'oeuvre" - 742 m (9 min.)
- Fitness centre "gym 61" - 864 m (11 min.)
- Swimming pool - 1.2 km
- Sports pitch "Zimen Dvorets Na Sporta" - 957 m (12 min.)
- Spa centre - 349 m (5 min.)
- Park - 634 m (8 min.)
- Car park "maxi" - 186 m (3 min.)
- Petrol station "Petrol AD" - 630 m (8 min.)
- Car wash - 476 m (6 min.)
- Car service "Godishen Tehnicheski Pregled (GTP)" - 588 m (8 min.)
- Embassy "Posolstvo Na Islyamska Republika Iran" - 852 m (11 min.)
PUBLIC TRANSPORT
EDUCATIONAL INSTITUTIONS
MEDICAL INSTITUTIONS
SHOPPING
SERVICES
RESTAURANTS & BARS
SPORTS & LEASURE
NATURE & SIGHTSEEING
CAR SERVICES
PUBLIC BUILDINGS & INSTITUTIONS
REQUEST DETAILS
This offer is not valid
Please contact us and we will find other properties that match your requirements.
This offer is not valid
Please contact us and we will find other properties that match your requirements.
*/ ?>
FOR MORE INFORMATION
Property ref: Sfa 79317
When calling, please quote the property reference number.
