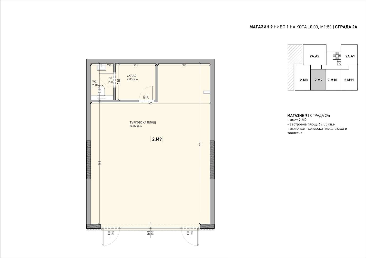
Apartment 9 , total size 82.03 sq.m. (net area 69.05 sq.m. + common parts 12.98 sq.m.).
We are pleased to present for sale functional and spacious apartments, 1-bedroom, 2-bedroom, 3-bedroom with modern layouts, tailored to the needs of the modern home in a boutique residential complex, located amid greenery and quietness, combining modern amenities with a cozy park environment, near a new kindergarten, with quick and easy access to Todor Kableshkov St. - an important road connecting Bulgaria Blvd. with Cherni Vrah Blvd. Expected Act 16 - 6.2029.
The inner garden is designed as a real green oasis with spectacular fountains and places for relaxation, walks and sports - jogging paths and children playground, creating a comfortable and relaxing environment for the whole family. The complex offers not only space but also security - with a fenced perimeter and controlled access.
It includes four buildings with six floors each, over a 8053 sq.m. There are designed retail spaces on the ground floor and ground apartments with individual gardens for added comfort and privacy. The architecture of the complex is stylish, with attention to every detail. Only high-quality materials are used and uncompromising precision in vision and execution is maintained. There are two underground levels with garages and parking spaces for the residential part, and a separate level with parking spaces for the commercial facilities.
The entire façade is finished with natural stone "Travertine" with impressive detail dimensions of 180/80 cm. It is ventilated, the stone is additionally impregnated with a waterproof layer, which protects the building from moisture and temperature fluctuations while preserving the natural beauty of the stone. An additional waterproofing layer is provided in the window area. The dwellings are issued with unfinished interior.
Building 1
• 6 above-ground floors
• 3 underground levels
• retail outlets on the ground floor
• two entrances 1A and 1B
Building 2
• 6 above-ground floors
• 2 underground levels
• retail outlets on the ground floor
• three entrances 2A, 2B, 2C
Building 3
• 6 above-ground floors
• 2 underground levels
• retail outlets on the ground floor
• 1 entrance - 3A
Building 4
• 6 above-ground floors
• 2 underground levels
• retail outlets and garages on the ground floor
• two separate entrances 4A and 4B
An ideal choice for a contemporary, stylish and cosy home combined with impeccable aesthetics and comfort or an investment in a quality and secure property with excellent features and a variety of payment plans to suit the stages of construction and your personal capabilities.
View the property
We can arrange a viewing of the property to suit our timetable and availability. Request your viewing by contacting the broker responsible for the offer by email or telephone.
Reservation of the property
The property can be reserved and taken off sale with payment of a deposit, after which viewings with other buyers will cease and preparation of the documents for a preliminary and final contract will commence. Contact the responsible broker for details of the purchase procedure and payment arrangements.
- Description
- Features
- Gallery
- Location
- Price list
Property features
Type of property
Shop
Ref. No.
Sfb 88614
Area
82.03 m2 (net area: 69.05 m2 plus common parts: 12.98 m2)
Bedrooms
1,2,3
Condition
Bulgarian standard
Floor
1 of 6
Lift
yes
Furnishing
Unfurnished
Heating system
Air-conditioners
Type of building
Brick-built, New building
Exposition:
East, West, North, South
Year of construction
2029
More information about Boutique residential complex in Manastirski Livadi-East quarter:
Plans
Plans
Price list
Air quality
Furnishing
Aerial Photos
Site plan
Panoramic view
Info pack
Reference number: Sfb 88614
Location
Sofia, Manastirski LivadiLocal amenities
- Bus stop "UL. LUI AYER" - 232 m (3 min.) - Bus No: 801
- Trolleybus stop "Zh.K. GOTsE DELChEV" - 360 m (5 min.) - Trolleybus No: 8, 7
- Tram station "KV. MANASTIRSKI LIVADI - ZAPAD" - 1.0 km (13 min.) - Tram No: 7, 27
- Kindergarten "DG 7 „Detelina“" - 605 m (8 min.)
- Kindergarten "Slancho" - 885 m (11 min.)
- School "73 SU „Vladislav Gramatik“" - 760 m (10 min.)
- School "NCh "Dimitar Dinev" - Muzikalna Shkola" - 859 m (11 min.)
- Hospital "MTs “UniHospital”" - 799 m (10 min.)
- Hospital "29-ti DKTs" - 852 m (11 min.)
- Medical center "vivid" - 130 m (2 min.)
- Food market "super" - 233 m (3 min.)
- Supermarket "elysium Market" - 247 m (3 min.)
- Supermarket "Vikont" - 539 m (7 min.)
- Bakery "Brimeks" - 445 m (6 min.)
- Pet shop "Ava Zoo" - 458 m (6 min.)
- Mall "Mol Balgariya" - 937 m (12 min.)
- Bank "OBB" - 626 m (8 min.)
- Bank "OBB" - 626 m (8 min.)
- Pharmacy "sopharmacy" - 424 m (6 min.)
- Postal service "speedy" - 464 m (6 min.)
- Postal service "Ekont" - 468 m (6 min.)
- Hair-dresser "style House" - 433 m (6 min.)
- Dry cleaner's "the Clean Spot" - 463 m (6 min.)
- Beauty salon "r" - 406 m (5 min.)
- Vet "9vet" - 581 m (7 min.)
- Restaurant "yany Steak&wine" - 397 m (5 min.)
- Restaurant - 598 m (8 min.)
- Cafe "mona Rosa" - 451 m (6 min.)
- Bar "Emerald Bar & Laundzh" - 570 m (7 min.)
- Fitness centre - 517 m (7 min.)
- Swimming pool - 587 m (8 min.)
- Sports pitch "mettasense Yoga & Relax Area" - 930 m (12 min.)
- Tennis court - 1.2 km (15 min.)
- Cinema "cineland" - 876 m (11 min.)
- Park - 711 m (9 min.)
- Garden - 333 m (5 min.)
- Car park - 26 m (1 min.)
- Petrol station "interspeed" - 534 m (7 min.)
- Charging station "Stolichen Elektrotransport" - 432 m (6 min.)
- Car wash - 399 m (5 min.)
- Car service - 395 m (5 min.)
PUBLIC TRANSPORT
EDUCATIONAL INSTITUTIONS
MEDICAL INSTITUTIONS
SHOPPING
SERVICES
RESTAURANTS & BARS
SPORTS & LEASURE
NATURE & SIGHTSEEING
CAR SERVICES
REQUEST DETAILS
€ 298 400
- €
- $
- £
We accept credit, debit cards & PayPal
Online payments by virtual POS terminal
Online payments by virtual POS terminal
Under construction
Planned completion: 30.06.2029
Agency commission due
Price list
*/ ?>
FOR MORE INFORMATION
Property ref: Sfb 88614
When calling, please quote the property reference number.
Available properties in this complex
148
properties
128
available
12
sold
8
reserved
REQUEST DETAILS
More properties in in this complex
For sale
new
2-bedroom apartment in Boutique residential complex in Manastirski Livadi-East quarter
Sofia , Quarter Manastirski Livadi
Functional and spacious apartments, high-class construction amidst greenery next to a kindergarten and easy access to key boulevards
For sale
new
2-bedroom apartment in Boutique residential complex in Manastirski Livadi-East quarter
Sofia , Quarter Manastirski Livadi
Functional and spacious apartments, high-class construction amidst greenery next to a kindergarten and easy access to key boulevards
For sale
new
2-bedroom apartment in Boutique residential complex in Manastirski Livadi-East quarter
Sofia , Quarter Manastirski Livadi
Functional and spacious apartments, high-class construction amidst greenery next to a kindergarten and easy access to key boulevards
For sale
new
2-bedroom apartment in Boutique residential complex in Manastirski Livadi-East quarter
Sofia , Quarter Manastirski Livadi
Functional and spacious apartments, high-class construction amidst greenery next to a kindergarten and easy access to key boulevards
For sale
new
2-bedroom apartment in Boutique residential complex in Manastirski Livadi-East quarter
Sofia , Quarter Manastirski Livadi
Functional and spacious apartments, high-class construction amidst greenery next to a kindergarten and easy access to key boulevards
For sale
new
2-bedroom apartment in Boutique residential complex in Manastirski Livadi-East quarter
Sofia , Quarter Manastirski Livadi
Functional and spacious apartments, high-class construction amidst greenery next to a kindergarten and easy access to key boulevards
For sale
new
2-bedroom apartment in Boutique residential complex in Manastirski Livadi-East quarter
Sofia , Quarter Manastirski Livadi
Functional and spacious apartments, high-class construction amidst greenery next to a kindergarten and easy access to key boulevards
For sale
new
Shop in Boutique residential complex in Manastirski Livadi-East quarter
Sofia , Quarter Manastirski Livadi
Functional and spacious apartments, high-class construction amidst greenery next to a kindergarten and easy access to key boulevards
For sale
new
Shop in Boutique residential complex in Manastirski Livadi-East quarter
Sofia , Quarter Manastirski Livadi
Functional and spacious apartments, high-class construction amidst greenery next to a kindergarten and easy access to key boulevards
For sale
new
Shop in Boutique residential complex in Manastirski Livadi-East quarter
Sofia , Quarter Manastirski Livadi
Functional and spacious apartments, high-class construction amidst greenery next to a kindergarten and easy access to key boulevards
For sale
new
Shop in Boutique residential complex in Manastirski Livadi-East quarter
Sofia , Quarter Manastirski Livadi
Functional and spacious apartments, high-class construction amidst greenery next to a kindergarten and easy access to key boulevards
For sale
new
Shop in Boutique residential complex in Manastirski Livadi-East quarter
Sofia , Quarter Manastirski Livadi
Functional and spacious apartments, high-class construction amidst greenery next to a kindergarten and easy access to key boulevards
For sale
new
1-bedroom apartment in Boutique residential complex in Manastirski Livadi-East quarter
Sofia , Quarter Manastirski Livadi
Functional and spacious apartments, high-class construction amidst greenery next to a kindergarten and easy access to key boulevards
For sale
new
2-bedroom apartment in Boutique residential complex in Manastirski Livadi-East quarter
Sofia , Quarter Manastirski Livadi
Functional and spacious apartments, high-class construction amidst greenery next to a kindergarten and easy access to key boulevards
For sale
new
1-bedroom apartment in Boutique residential complex in Manastirski Livadi-East quarter
Sofia , Quarter Manastirski Livadi
Functional and spacious apartments, high-class construction amidst greenery next to a kindergarten and easy access to key boulevards
For sale
new
2-bedroom apartment in Boutique residential complex in Manastirski Livadi-East quarter
Sofia , Quarter Manastirski Livadi
Functional and spacious apartments, high-class construction amidst greenery next to a kindergarten and easy access to key boulevards
For sale
new
1-bedroom apartment in Boutique residential complex in Manastirski Livadi-East quarter
Sofia , Quarter Manastirski Livadi
Functional and spacious apartments, high-class construction amidst greenery next to a kindergarten and easy access to key boulevards
For sale
new
2-bedroom apartment in Boutique residential complex in Manastirski Livadi-East quarter
Sofia , Quarter Manastirski Livadi
Functional and spacious apartments, high-class construction amidst greenery next to a kindergarten and easy access to key boulevards
For sale
new
1-bedroom apartment in Boutique residential complex in Manastirski Livadi-East quarter
Sofia , Quarter Manastirski Livadi
Functional and spacious apartments, high-class construction amidst greenery next to a kindergarten and easy access to key boulevards
For sale
new
2-bedroom apartment in Boutique residential complex in Manastirski Livadi-East quarter
Sofia , Quarter Manastirski Livadi
Functional and spacious apartments, high-class construction amidst greenery next to a kindergarten and easy access to key boulevards
For sale
new
1-bedroom apartment in Boutique residential complex in Manastirski Livadi-East quarter
Sofia , Quarter Manastirski Livadi
Functional and spacious apartments, high-class construction amidst greenery next to a kindergarten and easy access to key boulevards
For sale
new
2-bedroom apartment in Boutique residential complex in Manastirski Livadi-East quarter
Sofia , Quarter Manastirski Livadi
Functional and spacious apartments, high-class construction amidst greenery next to a kindergarten and easy access to key boulevards
For sale
new
1-bedroom apartment in Boutique residential complex in Manastirski Livadi-East quarter
Sofia , Quarter Manastirski Livadi
Functional and spacious apartments, high-class construction amidst greenery next to a kindergarten and easy access to key boulevards
For sale
new
2-bedroom apartment in Boutique residential complex in Manastirski Livadi-East quarter
Sofia , Quarter Manastirski Livadi
Functional and spacious apartments, high-class construction amidst greenery next to a kindergarten and easy access to key boulevards
For sale
new
1-bedroom apartment in Boutique residential complex in Manastirski Livadi-East quarter
Sofia , Quarter Manastirski Livadi
Functional and spacious apartments, high-class construction amidst greenery next to a kindergarten and easy access to key boulevards
More properties in Quarter Manastirski Livadi
For sale
SOLE AGENT
Luxury
SKY TOWERS by AMur — the new architectural symbol of Sofia
Sofia , Quarter Manastirski Livadi
Premium high-rise complex with panoramic views and uniquw location just between the city and Vitosha mountain
SKY TOWERS by AMur — the new architectural symbol of Sofia - Premium high-rise complex with panoramic views and uniquw location just between the city and Vitosha mountain
For sale
SOLE AGENT
Luxury
SYNERA Residence – New Homes in Manastirski Livadi - East
Sofia , Quarter Manastirski Livadi
A building that benefits from a great location and various city amenities nearby
SYNERA Residence – New Homes in Manastirski Livadi - East - A building that benefits from a great location and various city amenities nearby
For sale
New building with only 16 apartments in Manastirski livadi quarter - east
Sofia , Quarter Manastirski Livadi
Apartments with 2 or 3 bedrooms near Vitosha and with convenient connections to the center of the capital
New building with only 16 apartments in Manastirski livadi quarter - east - Apartments with 2 or 3 bedrooms near Vitosha and with convenient connections to the center of the capital
For rent
new
Comfortable 1-bedroom apartment in Manastirski Livadi district
Sofia , Quarter Manastirski Livadi
Furnished apartment near the South Park, Vladislav Gramatik School, kindergarten
Comfortable 1-bedroom apartment in Manastirski Livadi district - Furnished apartment near the South Park, Vladislav Gramatik School, kindergarten
For sale
new
Spacious commercial property in a prestigious complex near key boulevards in the Manastirski Livadi district
Sofia , Quarter Manastirski Livadi
Modern business property in a new building – ideal for a shop, children's center, office, or showroom
Spacious commercial property in a prestigious complex near key boulevards in the Manastirski Livadi district - Modern business property in a new building – ideal for a shop, children's center, office, or showroom
For sale
new
Modern residential building in Manastirski livadi district
Sofia , Quarter Manastirski Livadi
Quality apartments with spacious and comfortable living area next to urban amenities
Modern residential building in Manastirski livadi district - Quality apartments with spacious and comfortable living area next to urban amenities
For sale
New residential building in Manastirski Livadi-East
Sofia , Quarter Manastirski Livadi
Modern homes with high energy efficiency close to urban amenities
New residential building in Manastirski Livadi-East - Modern homes with high energy efficiency close to urban amenities
For sale
Luxury
Luxury studio apartment on Bulgaria Blvd.
Sofia , Quarter Manastirski Livadi
Functional property, suitable for office or living in the iconic Kosher building
Luxury studio apartment on Bulgaria Blvd. - Functional property, suitable for office or living in the iconic Kosher building
For rent
Shop for Rent near Bulgaria Mall with Excellent Visibility
Sofia , Quarter Manastirski Livadi
Spacious commercial property with large frontage and strong customer flow
Shop for Rent near Bulgaria Mall with Excellent Visibility - Spacious commercial property with large frontage and strong customer flow
For rent
Luxury
Spacious office with a beautiful view of the mountain on Ring Road
Sofia , Quarter Manastirski Livadi
Unfurnished office with a convenient location in the quarter Manastirski Livadi
Spacious office with a beautiful view of the mountain on Ring Road - Unfurnished office with a convenient location in the quarter Manastirski Livadi
For rent
Furnished Studio with Panoramic Terrace in Manastirski Livadi
Sofia , Quarter Manastirski Livadi
Contemporary urban home with a spacious terrace and mountain views
Furnished Studio with Panoramic Terrace in Manastirski Livadi - Contemporary urban home with a spacious terrace and mountain views
For rent
Spacious office in a modern business center on Bulgaria Blvd.
Sofia , Quarter Manastirski Livadi
Business property with a nice view and excellent location in Manastirski livadi district
Spacious office in a modern business center on Bulgaria Blvd. - Business property with a nice view and excellent location in Manastirski livadi district
For rent
Spacious 2-bedroom Apartment for Rent in Manastirski Livadi
Sofia , Quarter Manastirski Livadi
A bright and comfortable 2-bedroom apartment in a sought-after neighborhood of Sofia
Spacious 2-bedroom Apartment for Rent in Manastirski Livadi - A bright and comfortable 2-bedroom apartment in a sought-after neighborhood of Sofia
For sale
High-class residential complex in Manastirski Livadi – East
Sofia , Quarter Manastirski Livadi
New homes with contemporary architecture and prestigious location, from a proven construction company
High-class residential complex in Manastirski Livadi – East - New homes with contemporary architecture and prestigious location, from a proven construction company
For sale
High-End Residential Complex in Manastirski Livadi – East
Sofia , Quarter Manastirski Livadi
A modern complex with an excellent location, green surroundings, and long-term investment value
High-End Residential Complex in Manastirski Livadi – East - A modern complex with an excellent location, green surroundings, and long-term investment value
For sale
South-Facing One-Bedroom Apartment at a Promotional Price in Manastirski Livadi
Sofia , Quarter Manastirski Livadi
Contemporary architecture, reputable developer and panoramic views of Vitosha Mountain
South-Facing One-Bedroom Apartment at a Promotional Price in Manastirski Livadi - Contemporary architecture, reputable developer and panoramic views of Vitosha Mountain
For sale
Luxury
One-Bedroom Apartment at a Promotional Price in Manastirski Livadi District
Sofia , Quarter Manastirski Livadi
Fully South-Facing Apartment on a Middle Floor with a View of Kopitoto
One-Bedroom Apartment at a Promotional Price in Manastirski Livadi District - Fully South-Facing Apartment on a Middle Floor with a View of Kopitoto
For sale
Bright 2-bedroom apartment in Manastirski Livadi district
Sofia , Quarter Manastirski Livadi
High-end new home with city panorama
Bright 2-bedroom apartment in Manastirski Livadi district - High-end new home with city panorama
For sale
Spacious South-Facing 2-Bedroom Apartment in Manastirski Livadi, Sofia
Sofia , Quarter Manastirski Livadi
Bright apartment with two bedrooms and two bathrooms in a prime location
Spacious South-Facing 2-Bedroom Apartment in Manastirski Livadi, Sofia - Bright apartment with two bedrooms and two bathrooms in a prime location
For sale
1-bedroom apartment at promotional price in Manastirski Livadi district
Sofia , Quarter Manastirski Livadi
New south-facing dwelling with panoramic views of Vitosha mountain
1-bedroom apartment at promotional price in Manastirski Livadi district - New south-facing dwelling with panoramic views of Vitosha mountain
For sale
-6%
Luxury
2-bedroom apartment in a modern residential building in Manastirski Livadi
Sofia , Quarter Manastirski Livadi
Premium quality, functional layout, and excellent location
2-bedroom apartment in a modern residential building in Manastirski Livadi - Premium quality, functional layout, and excellent location
For rent
Outdoor parking spaces for rent in Manastirski Livadi – West
Sofia , Quarter Manastirski Livadi
Parking spaces in a building with Act 16, controlled access and premium location near Amur Residence complex
Outdoor parking spaces for rent in Manastirski Livadi – West - Parking spaces in a building with Act 16, controlled access and premium location near Amur Residence complex
For sale
South-Facing One-Bedroom Apartment with Stunning Views of Kopitoto – Manastirski Livadi
Sofia , Quarter Manastirski Livadi
Contemporary architecture, reputable developer and prime location
South-Facing One-Bedroom Apartment with Stunning Views of Kopitoto – Manastirski Livadi - Contemporary architecture, reputable developer and prime location
For sale
Luxury
High-End Residential Project in Manastirski Livadi – Prestige, Comfort, and Modern Vision
Sofia , Quarter Manastirski Livadi
Contemporary architecture, a proven investor, and an excellent location in southern Sofia
High-End Residential Project in Manastirski Livadi – Prestige, Comfort, and Modern Vision - Contemporary architecture, a proven investor, and an excellent location in southern Sofia
For rent
2-bedroom apartment for rent in Manastirski Livadi, Sofia
Sofia , Quarter Manastirski Livadi
Fully furnished apartment with parking space in a prime location
2-bedroom apartment for rent in Manastirski Livadi, Sofia - Fully furnished apartment with parking space in a prime location
More properties in Sofia
For sale
new
best bargain
Spacious apartment with a private garden and parking space in Boyana district
Sofia , Quarter Boyana
New home with three bedrooms, a study, and southwest exposure in a boutique building
Spacious apartment with a private garden and parking space in Boyana district - New home with three bedrooms, a study, and southwest exposure in a boutique building
For sale
SOLE AGENTBestseller
Central Park – 7 buildings with a 12-decare private park. Buildings A, B, and V have received Act 16!
Sofia , Quarter Banishora
A unique residential complex inspired by the style and atmosphere of New York’s iconic Central Park. The best-selling residential complex for 2022, 2023, 2024, and 2025!
Central Park – 7 buildings with a 12-decare private park. Buildings A, B, and V have received Act 16! - A unique residential complex inspired by the style and atmosphere of New York’s iconic Central Park. The best-selling residential complex for 2022, 2023, 2024, and 2025!
For sale
SOLE AGENT
Luxury
SKY TOWERS by AMur — the new architectural symbol of Sofia
Sofia , Quarter Manastirski Livadi
Premium high-rise complex with panoramic views and uniquw location just between the city and Vitosha mountain
SKY TOWERS by AMur — the new architectural symbol of Sofia - Premium high-rise complex with panoramic views and uniquw location just between the city and Vitosha mountain
For sale
SOLE AGENT
Luxury
SYNERA Residence – New Homes in Manastirski Livadi - East
Sofia , Quarter Manastirski Livadi
A building that benefits from a great location and various city amenities nearby
SYNERA Residence – New Homes in Manastirski Livadi - East - A building that benefits from a great location and various city amenities nearby
For sale
SOLE AGENT
Luxury
Corner Park – Exclusive New Residential Development in Sofia, Suhata Reka
Sofia , Quarter Suhata Reka
Modern urban design, excellent location and flexible payment plans – your new home in Sofia
Corner Park – Exclusive New Residential Development in Sofia, Suhata Reka - Modern urban design, excellent location and flexible payment plans – your new home in Sofia
For sale
SOLE AGENT
Stylish new project in Malinova Dolina – modern apartments in a pleasant residential area
Sofia , Quarter Malinova Dolina
Modern comfort and investment security in the heart of Malinova Dolina district
Stylish new project in Malinova Dolina – modern apartments in a pleasant residential area - Modern comfort and investment security in the heart of Malinova Dolina district
For sale
SOLE AGENTBestseller
1- and 2-bedroom apartments near the National Sports Academy
Sofia , Quarter Malinova Dolina
New building with Act 15 and prime location in Malinova Dolina neighborhood
1- and 2-bedroom apartments near the National Sports Academy - New building with Act 15 and prime location in Malinova Dolina neighborhood
For sale
Apartments with central location next to Slivnitsa Blvd. with Act 14
Sofia , Quarter Center
Apartments with 1, 2 or 3 bedrooms in luxurious 9-storey building
Apartments with central location next to Slivnitsa Blvd. with Act 14 - Apartments with 1, 2 or 3 bedrooms in luxurious 9-storey building
For sale
New building with only 16 apartments in Manastirski livadi quarter - east
Sofia , Quarter Manastirski Livadi
Apartments with 2 or 3 bedrooms near Vitosha and with convenient connections to the center of the capital
New building with only 16 apartments in Manastirski livadi quarter - east - Apartments with 2 or 3 bedrooms near Vitosha and with convenient connections to the center of the capital
For sale
SOLE AGENT
Luxury urban complex of two buildings Green View Apartments in Kniazhevo district
Sofia , Quarter Knyazhevo
1- and 2-bedroom apartments, high-quality construction
Luxury urban complex of two buildings Green View Apartments in Kniazhevo district - 1- and 2-bedroom apartments, high-quality construction
For sale
SOLE AGENTBestseller
Vitosha View - an emblematic complex in Krastova Vada area
Sofia , Quarter Krustova Vada
Stylish apartments in a new residential complex with a great location. Perfect for investment!
Vitosha View - an emblematic complex in Krastova Vada area - Stylish apartments in a new residential complex with a great location. Perfect for investment!
from € 429 000
(€/sq.m. 2 618 - €/sq.m. 2 715)Area: 163.89 - 163.89 sq.m.
Magdalena Tosheva
Senior Estate Agent, Sofia
For sale
Luxury
Reina Sofia Residence - high-class housing, energy class A, near Zoo Sofia and Loven Park
Sofia , Quarter Krustova Vada
Last apartments in a complex with green areas and received Act 16
Reina Sofia Residence - high-class housing, energy class A, near Zoo Sofia and Loven Park - Last apartments in a complex with green areas and received Act 16
For sale
New building with two sections next to the National Sports Academy
Sofia , Quarter Malinova Dolina
New apartments with excellent location at the foot of Vitosha
New building with two sections next to the National Sports Academy - New apartments with excellent location at the foot of Vitosha
For sale
SOLE AGENTBestseller
Malinova Dolina Residential Complex - Apartments for Sale
Sofia , Quarter Malinova Dolina
Modern apartment complex with spacious layouts
Malinova Dolina Residential Complex - Apartments for Sale - Modern apartment complex with spacious layouts
from € 310 000
(€/sq.m. 1 863 - €/sq.m. 2 042)Area: 151.80 - 191.62 sq.m.
Magdalena Tsoklinova
Senior Estate Agent, Sofia
For sale
Apartment near Business Park Sofia
Sofia , Quarter Mladost 4
Apartments with 1, 2 and 3 bedrooms in a new complex with an excellent location in Mladost 4 district
Apartment near Business Park Sofia - Apartments with 1, 2 and 3 bedrooms in a new complex with an excellent location in Mladost 4 district
For rent
new
Luxury
Luxury 3-bedroom Apartment near Embassy of the United States
Sofia , Quarter Lozenets
Prestigious apartment with parking space
Luxury 3-bedroom Apartment near Embassy of the United States - Prestigious apartment with parking space
For sale
new
Modern gated residential complex in Ovcha Kupel 2 district
Sofia , Quarter Ovcha Kupel 2
Contemporary development at the foot of Vitosha mountain with easy access to metro station
Modern gated residential complex in Ovcha Kupel 2 district - Contemporary development at the foot of Vitosha mountain with easy access to metro station
For sale
new
Luxury
High class terraced house with garden and two parking spaces
Pancharevo , kompleks Byala cherkva
South facing property with three bedrooms and excellent location in a quiet and green area
High class terraced house with garden and two parking spaces - South facing property with three bedrooms and excellent location in a quiet and green area
For sale
new
2-storey villa with garden 200 m from Iskar dam
Gorni okol
Lovely property with swimming pool, barbecue, garage in picturesque villa area
2-storey villa with garden 200 m from Iskar dam - Lovely property with swimming pool, barbecue, garage in picturesque villa area
For sale
new
SOLE AGENT
Modern 2-bedroom apartment in a new building next to Ovcha Kupel Park
Sofia , Quarter Ovcha Kupel
Fully finished and furnished home with excellent location, and convenient access to the metro and New Bulgarian University
Modern 2-bedroom apartment in a new building next to Ovcha Kupel Park - Fully finished and furnished home with excellent location, and convenient access to the metro and New Bulgarian University
For sale
new
SOLE AGENT
best bargain
Fully Renovated and Furnished Apartment Near “Hadji Dimitar” Metro Station
Sofia , Quarter Hadji Dimitar
A high-floor apartment with optimized spaces and an excellent location near 42nd Primary School “Hadji Dimitar” and public transport stops
Fully Renovated and Furnished Apartment Near “Hadji Dimitar” Metro Station - A high-floor apartment with optimized spaces and an excellent location near 42nd Primary School “Hadji Dimitar” and public transport stops
For rent
new
Comfortable 1-bedroom apartment in Manastirski Livadi district
Sofia , Quarter Manastirski Livadi
Furnished apartment near the South Park, Vladislav Gramatik School, kindergarten
Comfortable 1-bedroom apartment in Manastirski Livadi district - Furnished apartment near the South Park, Vladislav Gramatik School, kindergarten
For rent
new
SOLE AGENT
One-bedroom apartment for rent in a new building in Sofia
Sofia , Quarter Ovcha Kupel
Excellent home with a convenient layout in a nice area Ovcha Kupel
One-bedroom apartment for rent in a new building in Sofia - Excellent home with a convenient layout in a nice area Ovcha Kupel
For sale
new
Apartment Sofia
Sofia , Quarter Dragalevtsi
for sale - apartment
Apartment Sofia - for sale - apartment
For sale
new
Luxury
Nice 2-level penthouse in Lozenets district with spacious view of South Park
Sofia , Quarter Lozenets
Stylish 3-bedroom apartment with lots of natural light, comfort and amenities
Nice 2-level penthouse in Lozenets district with spacious view of South Park - Stylish 3-bedroom apartment with lots of natural light, comfort and amenities
Subscribe to our channel