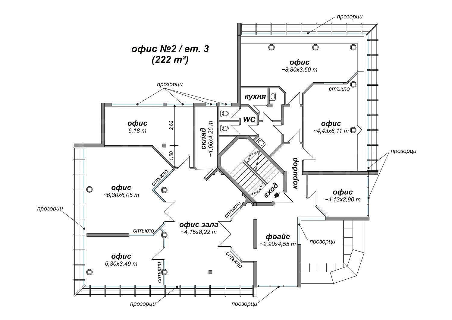
For rent is an office with an area of 222 sq. m., located on the whole floor in a small office building on 4 floors, located only 300 meters from the metro station "G.M. Dimitrov".
The excellent communicative location offers within walking distance everything you need - public transport stops, metro, grocery store, cafes and restaurants, pharmacy, health facility.
The business premises are rented semi-furnished.
The office is maintained in good condition, it is finished with tiled flooring, central heating and air conditioning, PVC-framework.
The rental price includes the use of two parking spaces, as in sq. There are public spaces for free use.
The office is located in close proximity to the headquarters of the First Investment Bank, the towers Sopharma / Litex, NV Tower, OMV gas station, Sofia Tech Park, Blvd. Tsarigradsko shose.
The excellent location of the property provides quick and easy travel to and from any point of the capital, and the perfect infrastructure in the area offers all everyday amenities - cafes, restaurants, grocery store, sports centers, pharmacies, shops and much more.
Viewings
We are ready to organize a viewing of this property at a time convenient for you. Please contact the responsible estate agent and inform them when you would like to have viewings arranged. We can also help you with flight tickets and hotel booking, as well as with travel insurance.
How to rent the property?
If you like the property and decide to rent it, we will be able to prepare a rental agreement with the landlord and present it for approval and signature by both parties. The usual practice is to prepay one rent for the first month and to leave a guarantee deposit to the landlord to the amount of one month's rent. Please contact the responsible estate agent for more information on the procedure for renting the property as it may vary between long-term, short-term and seasonal rents.
RENTED OUT
Office for rent next to metro station "G.M. Dimitrov"
Sofia, MusagenitsaSemi-furnished business premises with a communicative location in the capital
Property features
Type of property
Office
Ref. No.
Sfa 84788
Area
222.00 m2
Condition
good
Floor
3 of 4
Furnishing
Unfurnished
Heating system
Air-conditioners / Central heating
Garden
no
Year of construction
2000
Location
Sofia, MusagenitsaLocal amenities
- Metro station "G. M. DIMITROV" - 441 m (6 min.) - Line No: M1, M4
- Bus stop "TEHNIChESKI UNIVERSITET" - 212 m (3 min.) - Bus No: 280, 69, 123, 88, 70
- Trolleybus stop "PLOShtAD NA AVIATsIYaTA" - 1.2 km (15 min.) - Trolleybus No: 5, 4, 3, 11
- Kindergarten "DG 12 „Liliya“" - 381 m (5 min.)
- Kindergarten "DG 10 „Cheburashka“" - 511 m (7 min.)
- School "55. SU „Petko Karavelov“" - 383 m (5 min.)
- School "Robotika" - 393 m (5 min.)
- University "Minno-geolozhki Universitet "Sv. Ivan Rilski"" - 450 m (6 min.)
- University "Tehnicheski Universitet - Sofiya" - 547 m (7 min.)
- Hospital "Natsionalna Spetsializirana Bolnitsa Za Aktivno Lechenie Po Onkologiya" - 125 m (2 min.)
- Hospital "Bolnitsa Za Reproduktivna Meditsina Sofiya" - 573 m (7 min.)
- Food market "minimart" - 302 m (4 min.)
- Supermarket "billa" - 487 m (6 min.)
- Supermarket "Perfekta" - 504 m (7 min.)
- Marketplace "Targovski Kompleks "Podhod Kam Tehnicheski Universitet"" - 319 m (4 min.)
- Pet shop "Zoostrast" - 563 m (7 min.)
- Mall "Targovski Tsentar Sofarma Biznes Tauars" - 707 m (9 min.)
- Bank "Banka DSK" - 321 m (4 min.)
- Bank "Tsentralna Kooperativna Banka" - 328 m (4 min.)
- ATM "Banka DSK" - 321 m (4 min.)
- ATM "Poshtenska Banka" - 693 m (9 min.)
- Pharmacy "Dina Med" - 18 m (1 min.)
- Postal service "Ekont" - 283 m (4 min.)
- Postal service "speedy" - 321 m (4 min.)
- Dry cleaner's "ultra" - 838 m (11 min.)
- Hair-dresser "Bateto" - 320 m (4 min.)
- Beauty salon "Bryule" - 321 m (4 min.)
- Vet "Veterinaren Kabinet" - 577 m (7 min.)
- Restaurant "caramel Relax Bar & Dinner" - 287 m (4 min.)
- Restaurant "nargileto" - 306 m (4 min.)
- Bar "joy Station" - 1.2 km (14 min.)
- Casino "magic Club" - 662 m (8 min.)
- Children's playground "Zlaten Klas" - 264 m (4 min.)
- Fitness centre "x Body Energy" - 578 m (7 min.)
- Swimming pool - 1.1 km (14 min.)
- Sports pitch "Tehnicheski Universitet - Sofiya" - 342 m (5 min.)
- Tennis court - 96 m (2 min.)
- Museum "Muzeyko" - 347 m (5 min.)
- Museum "Muzey Na Pchelata" - 360 m (5 min.)
- Park - 398 m (5 min.)
- Garden "Gradina Muzey Na Sotsialisticheskoto Izkustvo" - 657 m (8 min.)
- Car park - 84 m (2 min.)
- Petrol station "OMV" - 417 m (6 min.)
- Charging station "gigacharger" - 997 m (13 min.)
- Car wash "omv" - 385 m (5 min.)
- Embassy "Posolstvo Na KNDR" - 822 m (10 min.)
- Library "Biblioteka Na TU - Sofiya" - 417 m (6 min.)
- Church "Hram "Sveti Velikomachenik Georgi Pobedonosets"" - 842 m (11 min.)
PUBLIC TRANSPORT
EDUCATIONAL INSTITUTIONS
MEDICAL INSTITUTIONS
SHOPPING
SERVICES
RESTAURANTS & BARS
SPORTS & LEASURE
NATURE & SIGHTSEEING
CAR SERVICES
PUBLIC BUILDINGS & INSTITUTIONS
REQUEST DETAILS
This property is rented out
Please contact us and we will find other properties that match your requirements.
€ 1 665/month
- €
- $
- £
We accept credit, debit cards & PayPal
Online payments by virtual POS terminal
Online payments by virtual POS terminal
This property is rented out
Please contact us and we will find other properties that match your requirements.
*/ ?>
FOR MORE INFORMATION
Property ref: Sfa 84788
When calling, please quote the property reference number.
