If you dream of living in a spacious house with a beautiful view, away from the noise of the busy city, but also with quick access to the amenities of the capital, this property can be your dream home!
The property is located in the village of Chepintsi, where there are many new houses with year-round residents who have preferred the tranquility of the village in combination with quick and easy access to all city amenities. The area is suitable for mountaineering and other pleasant outdoor activities. Getting to the city is fast and convenient, and the surrounding nature is clean and allows for a peaceful life, away from everyday stress, without depriving you of the comforts of modern infrastructure.
The property is under construction with expected completion in July 2022.
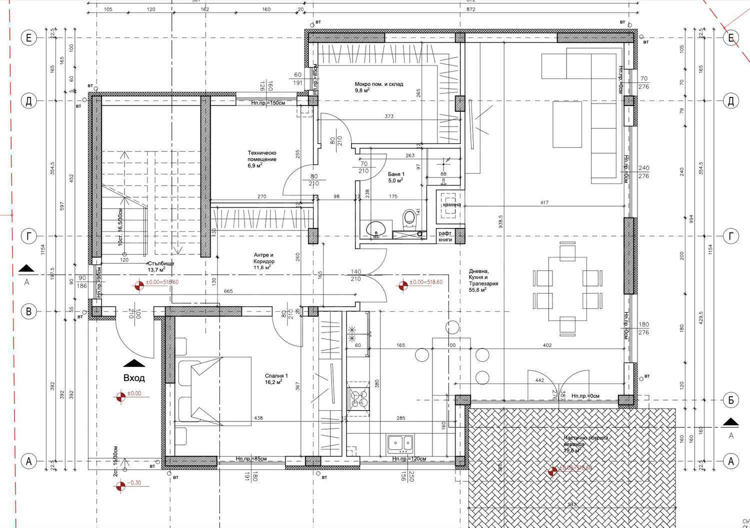
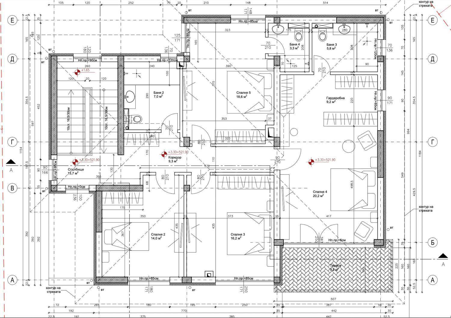
The house has an area of 293 square meters and consists of:
• First floor - entrance hall, living room with kitchen and dining area, technical room, bedroom, bathroom with toilet, laundry room, partially covered veranda.
• Second floor - hallway, two bedrooms (one with walk-in wardrobe) each with its own bathroom and toilet, two more bedrooms, bathroom with toilet, terrace.
It has a garden with an area of 681 square meters.
The house is for sale finished to Bulgarian State Standard:
• Exterior brick walls with thermal insulation EPS 10 cm.
• Brick partition walls 12 cm.
• Front door.
• Floor - cement screed.
• Walls and ceilings - gypsum plaster.
• Flooring on the terrace - granite and railings.
• PVC windows white.
• Low current installations - built wiring.
• Fully built plumbing installation.
• El. installations - fully built.
• External insulation.
• Heating air conditioners and heat pump.
• Tiled roof.
Viewings
We are ready to organize a viewing of this property at a time convenient for you. Please contact the responsible estate agent and inform them when you would like to have viewings arranged. We can also help you with flight tickets and hotel booking, as well as with travel insurance.
Property reservation
You can reserve this property with a non-refundable deposit of 2,000 Euro, payable by credit card or by bank transfer to our company bank account. After receiving the deposit the property will be marked as reserved, no further viewings will be carried out with other potential buyers, and we will start the preparation of the necessary documents for completion of the deal. Please contact the responsible estate agent for more information about the purchase procedure and the payment methods.
After sale services 
We are a reputable company with many years of experience in the real estate business. Thus, we will be with you not only during the purchase process, but also after the deal is completed, providing you with a wide range of additional services tailored to your requirements and needs, so that you can fully enjoy your property in Bulgaria. The after sale services we offer include property insurance, construction and repair works, furnishing, accounting and legal assistance, renewal of contracts for electricity, water, telephone and many more.
									
									
								
									
									
									
																											
									
									
									
									
																			SOLD
										
								
								
								
								
																New house with 5 bedrooms in village 20 minutes from the center of Sofia
Near SofiaSpacious house on two floors quality construction with nice views in picturesque area
Property features
										
											Type of property										
										
											House										
									
									
										
											Ref. No.										
										
											Sfa 78776										
									
									
										
											Area										
										
											293.00 m2										
									
																			
											
												Bedrooms											
											
												5											
										
																			
										
											Condition										
										
											Bulgarian standard										
									
									
									
										
											
												Number of floors											
											
												2											
										
																				
											
												Furnishing											
											
												Unfurnished											
										
																				
											
												Heating system											
											
												Air-conditioners / Heat pump											
										
																				
											
												Type of building											
											
												Brick-built, New building											
										
																				
											
												Garden											
											
												681 m2											
										
																					
												
													Year of construction												
												
													2021												
											
																			Location
Near SofiaThe settlement has:
- Cable TV
- Internet
- Postal service
- Bus stop
- Food market
- Cafe
- The closest airport is in Sofiya (SOF), about 16 km away
Local amenities
- Metro station "LETIShtE SOFIYa" - 7.3 km - Line No: M4
- Bus stop "RAZKLONA KV. KREMIKOVTsI" - 1.1 km (14 min.) - Bus No: 117, 118
- Trolleybus stop "Zh.K. LEVSKI G" - 6.9 km - Trolleybus No: 1, 3
- Tram station "AVTOSTANTsIYa IZTOK" - 7.5 km - Tram No: 22
- Railway station "Tsentralna ZhP Gara Sofiya" - 12.1 km
- Airport "Letishte Sofiya - Terminal 2" - 7.2 km
- Kindergarten "132 DG Svetlina" - 3.2 km
- Kindergarten - 5.4 km
- School "58 ODZ" - 1.3 km
- School "159 OU Vasil Levski" - 1.7 km
- College "international University College" - 12.0 km
- University "Visshe Transportno Uchilishte "Todor Kableshkov"" - 9.7 km
- University "Institut Po Metaloznanie, Saorazheniya I Tehnologii „Akad. Angel Balevski“ S Tsentar Po Hidro- I Aerodinamika – BAN" - 10.4 km
- Hospital "16 DKTs" - 4.0 km
- Hospital - 5.4 km
- Food market "Lotus" - 2.0 km
- Supermarket - 1.9 km
- Supermarket "Vitosha Market" - 2.8 km
- Marketplace "Pazar Dolni Bogrov" - 5.1 km
- Pet shop "Nechoveshki Magazin" - 4.0 km
- Mall "skycity" - 10.5 km
- Bank "Banka DSK" - 7.1 km
- Bank "OBB" - 7.8 km
- ATM "Banka DSK" - 7.1 km
- ATM "OBB" - 7.8 km
- Pharmacy - 4.0 km
- Postal service "Balgarski Poshti" - 3.2 km
- Postal service "Balgarski Razmenno Sortirovachen Tsentar" - 3.7 km
- Hair-dresser - 7.4 km
- Dry cleaner's "Belina Eko" - 4.5 km
- Beauty salon "Bianka" - 6.9 km
- Vet "Veterinaren Kabinet" - 5.8 km
- Restaurant - 1.4 km
- Restaurant "Pod Oreha" - 2.0 km
- Bar "graphit Bar & Lounge" - 8.5 km
- Night club "exe Club" - 11.6 km
- Casino "mystic" - 10.2 km
- Children's playground - 6.9 km
- Fitness centre "healthmedica Sky Gym" - 8.0 km
- Swimming pool - 2.1 km
- Sports pitch "varadero" - 7.3 km
- Tennis court - 6.1 km
- Theatre "Malak Gradski Teatar Zad Kanala" - 10.7 km
- Theatre "Teatralna Rabotilnitsa Sfumato" - 10.7 km
- Cinema "arena The Mall" - 11.3 km
- Museum - 8.1 km
- Museum "Natsionalen Voennoistoricheski Muzey" - 10.9 km
- Fishing - 5.1 km
- Golf course "Golf Klub "Sv. Sofiya"" - 9.6 km
- Park - 1.5 km
- Garden - 4.8 km
- Car park - 1.3 km
- Petrol station "eko" - 1.8 km
- Charging station - 4.1 km
- Car wash - 3.8 km
- Embassy "Posolstvo Na Republika Belarus" - 10.3 km
- Court house "Apelativen Sad Sofiya" - 10.7 km
- Library "Napredak" - 3.1 km
- Church - 1.7 km
- Monastery "Buhovski Manastir „Sv. Mariya Magdalina“" - 8.3 km
PUBLIC TRANSPORT
EDUCATIONAL INSTITUTIONS
MEDICAL INSTITUTIONS
SHOPPING
SERVICES
RESTAURANTS & BARS
SPORTS & LEASURE
NATURE & SIGHTSEEING
CAR SERVICES
PUBLIC BUILDINGS & INSTITUTIONS
REQUEST DETAILS
														This property is sold
														
																							Please contact us and we will find other properties that match your requirements.
€ 395 000
- €
- $
- £
															We accept credit, debit cards & PayPal 
Online payments by virtual POS terminal
													Online payments by virtual POS terminal
															This property is sold
															
																									Please contact us and we will find other properties that match your requirements.
																																												   */ ?>
											
											
													FOR MORE INFORMATION
													Property ref: Sfa 78776
													
												
											When calling, please quote the property reference number.
 
																					 
							 
							 
									 
									 
									 
									 
									 
									 
									 
									 
									 
									 
									 
									 
									 
									 
									 
									 
									 
									 
									 
									 
									 
									 
									 
									 
									 
									 
									 
									 
									 
									 
									 
									 
									 
									 
									 
													 
															 
													 
															 
													 
															 
													 
															 
													 
													 
															 
													 
													 
													 
													 
													 
													 
													 
													 
													 
													 
													 
													 
													 
													 
													 
													 
															 
													 
													 
													