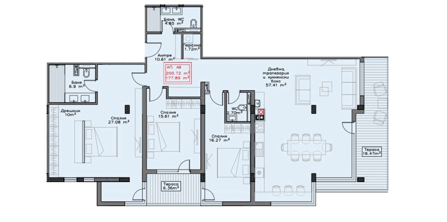
Apartment A9 , total size 238.68 sq.m. (net area 177.89 sq.m. + common parts 37.96 sq.m.), plus terrace of 22.83 sq.m. - .
Multifunctional residential and office building with two sections A and B with underground level, ground floor, residential floors and mansard apartments on the two last floors. The total built-up area is 13 215.46 sq.m. The residential part has 26 apartments of different types and layouts, as well as 4 shops with storehouses, and the office part - offices and an incredible conference hall at an elevation of +40.60, from where you can enjoy breathtaking views of the city and the picturesque Vitosha mountain.
The property is located next to Simeonovsko Shosse Blvd. for quick access to the central part of the city, near a variety of shops, sports and entertainment centers, schools, kindergartens, public facilities and parks, Studentski Grad educational institutions, hospitals, hypermarkets and more.
The external facade walls are built as a package of three zones:
• Hanging ventilated facade - synthesized Italian stone;
• Brick wall 380 mm - with vertical air chambers;
• Mineral wool 50 mm and plasterboard finish with paint.
The hanging ventilated facade made of Italian stone "Laminam" is 6 mm thick, the ventilation area is 30 mm, and the mineral wool is 100 mm. The installation technique aims to extend the life of the facade. This coating is a "bioactive ceramic" that makes buildings environmentally friendly and completely antibacterial. The manufacturer's warranty is 50 years.
The properties are issued with unfinished interior:
• Alumil aluminum joinery
• Fully built, individual hybrid IMMERGAS heating and cooling system, with included gas boiler, heat pump, underfloor heating over the entire area, high-wall convector units in each room and a water heater with a volume of 160 l. The hybrid systems successfully combines a highly efficient gas boiler with a renewable energy heat pump. They can be up to 35% more efficient than a regular gas boiler, saving money on energy bills and minimizing overall harmful emissions into the atmosphere.
• The sanitary rooms have built-in, universal structures from the company Grohe and waterproofing.
In addition, there is option to buy an underground parking space at prices from 35,000-60,000 euros.
Why buy an apartment in this building?
• Quality construction with a preferred location in Vitosha quarter
• Residential area with excellent infrastructure and amenities
• Properties suitable for investment and living, close to urban amenities, Hristo Botev Hall, the universities of Studentski Grad
• Functionally distributed homes
• Easy access to the city center and the mountain
• Quiet and peaceful neighborhood with low-rise buildings
The area provides easy and quick access to the center of Sofia, Vitosha Mountain, Studentski Grad, Mladost and Dianabad districts. The area has a well-developed infrastructure. In proximity you will find the major roads - Cherni Vrah, Simeonovsko Shosse, the Rind road for access to all parts of the city, including the Ring Mall, Business Park, Ikea store, highways Trakia and Struma, supermarkets Kaufland, Fantastico and Billa, shops, offices, banks, a variety of commercial services, popular bars and restaurants.
Viewings
We are ready to organize a viewing of this property at a time convenient for you. Please contact the responsible estate agent and inform them when you would like to have viewings arranged. We can also help you with flight tickets and hotel booking, as well as with travel insurance.
Property reservation
You can reserve this property with a non-refundable deposit of 2,000 Euro, payable by credit card or by bank transfer to our company bank account. After receiving the deposit the property will be marked as reserved, no further viewings will be carried out with other potential buyers, and we will start the preparation of the necessary documents for completion of the deal. Please contact the responsible estate agent for more information about the purchase procedure and the payment methods.
After sale services
We are a reputable company with many years of experience in the real estate business. Thus, we will be with you not only during the purchase process, but also after the deal is completed, providing you with a wide range of additional services tailored to your requirements and needs, so that you can fully enjoy your property in Bulgaria. The after sale services we offer include property insurance, construction and repair works, furnishing, accounting and legal assistance, renewal of contracts for electricity, water, telephone and many more.
Property features
Type of property
3-bedroom apartment
Ref. No.
Sfa 79403
Area
238.68 m2 (net area: 200.72 m2 plus common parts: 37.96 m2)
Bedrooms
1,2,3
Condition
Bulgarian standard
Floor
5
Lift
yes
Furnishing
Unfurnished
Heating system
Air-conditioners / Gas heating system / Underfloor heating / Heat pump
Type of building
Brick-built, New building
Garden
no
Year of construction
2025
Exposition:
East, West, North, South
More information about Multifunctional residential and office building in Studentski grad:
Plans
Plans
Air quality
Furnishing
Quarter
Aerial Photos
Site plan
Panoramic view
Info pack
Reference number: Sfa 79403
Location
Sofia, Studentski GradLocal amenities
- Bus stop "KV. VITOShA" - 28 m (1 min.) - Bus No: 67, 102
- Kindergarten "DG 79 „Slanchitse“" - 314 m (4 min.)
- Kindergarten "DG 175 „Slanchevi Lachi“" - 452 m (6 min.)
- School "ChTsDG" - 160 m (2 min.)
- School "Svetlina" - 256 m (4 min.)
- University "Visshe Uchilishte Po Telekomunikatsii I Poshti" - 1.1 km (13 min.)
- University "NHA Fakultet Po Prilozhni Izkustva" - 1.1 km (13 min.)
- Hospital "STUDENTSKA POLIKLINIKA 5 Poliklinika – 5 DKTs" - 883 m (11 min.)
- Hospital "SAGBAL Sv. Lazar" - 899 m (11 min.)
- Food market - 352 m (5 min.)
- Supermarket "Vitosha" - 425 m (6 min.)
- Supermarket "Fantastiko" - 450 m (6 min.)
- Marketplace "Pazar Pred 58 Blok" - 972 m (12 min.)
- Pet shop - 739 m (9 min.)
- Mall "south Mall" - 847 m (11 min.)
- Bank "Poshtenska Banka" - 477 m (6 min.)
- Bank "unicredit Bulbank" - 507 m (7 min.)
- ATM "Poshtenska Banka" - 477 m (6 min.)
- ATM "Banka DSK" - 939 m (12 min.)
- Pharmacy "Olifarm" - 362 m (5 min.)
- Postal service "PS 1700" - 397 m (5 min.)
- Postal service "Ekont" - 506 m (7 min.)
- Dry cleaner's "dista" - 1.0 km (13 min.)
- Hair-dresser "dijo Style" - 314 m (4 min.)
- Beauty salon "Zhensko Tsarstvo" - 355 m (5 min.)
- Vet "Tsentralna Veterinarna Klinika" - 730 m (9 min.)
- Restaurant "saffron Indian Restaurant" - 310 m (4 min.)
- Restaurant "Elenska Mehana" - 367 m (5 min.)
- Bar "american Saloon" - 239 m (3 min.)
- Night club "ego Resto Club" - 529 m (7 min.)
- Casino "efbet" - 525 m (7 min.)
- Fitness centre "next Level" - 170 m (3 min.)
- Swimming pool - 388 m (5 min.)
- Sports pitch "Sportna Zala Hristo Botev" - 324 m (4 min.)
- Tennis court - 809 m (10 min.)
- Theatre - 719 m (9 min.)
- Park - 252 m (4 min.)
- Garden - 437 m (6 min.)
- Car park - 123 m (2 min.)
- Petrol station "Lukoyl" - 766 m (10 min.)
- Charging station "kaufland" - 979 m (12 min.)
- Car wash - 462 m (6 min.)
- Embassy "Posolstvoto Na Bolivarska Republika Venetsuela Rezidentsiya" - 69 m (1 min.)
PUBLIC TRANSPORT
EDUCATIONAL INSTITUTIONS
MEDICAL INSTITUTIONS
SHOPPING
SERVICES
RESTAURANTS & BARS
SPORTS & LEASURE
NATURE & SIGHTSEEING
CAR SERVICES
PUBLIC BUILDINGS & INSTITUTIONS
REQUEST DETAILS
This offer is not valid
Please contact us and we will find other properties that match your requirements.
This offer is not valid
Please contact us and we will find other properties that match your requirements.
*/ ?>
FOR MORE INFORMATION
Property ref: Sfa 79403
When calling, please quote the property reference number.
49
properties
25
available
24
sold
0
reserved
REQUEST DETAILS
More properties in in this complex
For sale
Invalid offer
3-bedroom apartment in Multifunctional residential and office building in Studentski grad
Sofia , Quarter Studentski Grad
High-class construction next to Simeonovsko Shosse Blvd. and Hristo Botev Hall
For sale
Invalid offer
2-bedroom apartment in Multifunctional residential and office building in Studentski grad
Sofia , Quarter Studentski Grad
High-class construction next to Simeonovsko Shosse Blvd. and Hristo Botev Hall
For sale
Invalid offer
2-bedroom apartment in Multifunctional residential and office building in Studentski grad
Sofia , Quarter Studentski Grad
High-class construction next to Simeonovsko Shosse Blvd. and Hristo Botev Hall
For sale
Invalid offer
2-bedroom apartment in Multifunctional residential and office building in Studentski grad
Sofia , Quarter Studentski Grad
High-class construction next to Simeonovsko Shosse Blvd. and Hristo Botev Hall
For sale
Invalid offer
1-bedroom apartment in Multifunctional residential and office building in Studentski grad
Sofia , Quarter Studentski Grad
High-class construction next to Simeonovsko Shosse Blvd. and Hristo Botev Hall
For sale
Invalid offer
3-bedroom apartment in Multifunctional residential and office building in Studentski grad
Sofia , Quarter Studentski Grad
High-class construction next to Simeonovsko Shosse Blvd. and Hristo Botev Hall
For sale
Invalid offer
2-bedroom apartment in Multifunctional residential and office building in Studentski grad
Sofia , Quarter Studentski Grad
High-class construction next to Simeonovsko Shosse Blvd. and Hristo Botev Hall
For sale
Invalid offer
3-bedroom apartment in Multifunctional residential and office building in Studentski grad
Sofia , Quarter Studentski Grad
High-class construction next to Simeonovsko Shosse Blvd. and Hristo Botev Hall
For sale
Invalid offer
2-bedroom apartment in Multifunctional residential and office building in Studentski grad
Sofia , Quarter Studentski Grad
High-class construction next to Simeonovsko Shosse Blvd. and Hristo Botev Hall
For sale
Invalid offer
3-bedroom apartment in Multifunctional residential and office building in Studentski grad
Sofia , Quarter Studentski Grad
High-class construction next to Simeonovsko Shosse Blvd. and Hristo Botev Hall
For sale
Invalid offer
1-bedroom apartment in Multifunctional residential and office building in Studentski grad
Sofia , Quarter Studentski Grad
High-class construction next to Simeonovsko Shosse Blvd. and Hristo Botev Hall
For sale
Invalid offer
3-bedroom apartment in Multifunctional residential and office building in Studentski grad
Sofia , Quarter Studentski Grad
High-class construction next to Simeonovsko Shosse Blvd. and Hristo Botev Hall
For sale
Invalid offer
3-bedroom apartment in Multifunctional residential and office building in Studentski grad
Sofia , Quarter Studentski Grad
High-class construction next to Simeonovsko Shosse Blvd. and Hristo Botev Hall
For sale
Invalid offer
3-bedroom apartment in Multifunctional residential and office building in Studentski grad
Sofia , Quarter Studentski Grad
High-class construction next to Simeonovsko Shosse Blvd. and Hristo Botev Hall
For sale
Invalid offer
3-bedroom apartment in Multifunctional residential and office building in Studentski grad
Sofia , Quarter Studentski Grad
High-class construction next to Simeonovsko Shosse Blvd. and Hristo Botev Hall
For sale
Invalid offer
3-bedroom apartment in Multifunctional residential and office building in Studentski grad
Sofia , Quarter Studentski Grad
High-class construction next to Simeonovsko Shosse Blvd. and Hristo Botev Hall
For sale
Invalid offer
2-bedroom apartment in Multifunctional residential and office building in Studentski grad
Sofia , Quarter Studentski Grad
High-class construction next to Simeonovsko Shosse Blvd. and Hristo Botev Hall
For sale
Invalid offer
3-bedroom apartment in Multifunctional residential and office building in Studentski grad
Sofia , Quarter Studentski Grad
High-class construction next to Simeonovsko Shosse Blvd. and Hristo Botev Hall
For sale
Invalid offer
3-bedroom apartment in Multifunctional residential and office building in Studentski grad
Sofia , Quarter Studentski Grad
High-class construction next to Simeonovsko Shosse Blvd. and Hristo Botev Hall
For sale
Invalid offer
2-bedroom apartment in Multifunctional residential and office building in Studentski grad
Sofia , Quarter Studentski Grad
High-class construction next to Simeonovsko Shosse Blvd. and Hristo Botev Hall
For sale
Invalid offer
Office in Multifunctional residential and office building in Studentski grad
Sofia , Quarter Studentski Grad
High-class construction next to Simeonovsko Shosse Blvd. and Hristo Botev Hall
For sale
Invalid offer
Shop in Multifunctional residential and office building in Studentski grad
Sofia , Quarter Studentski Grad
High-class construction next to Simeonovsko Shosse Blvd. and Hristo Botev Hall
For sale
Invalid offer
Shop in Multifunctional residential and office building in Studentski grad
Sofia , Quarter Studentski Grad
High-class construction next to Simeonovsko Shosse Blvd. and Hristo Botev Hall
For sale
Invalid offer
Shop in Multifunctional residential and office building in Studentski grad
Sofia , Quarter Studentski Grad
High-class construction next to Simeonovsko Shosse Blvd. and Hristo Botev Hall
For sale
Invalid offer
Shop in Multifunctional residential and office building in Studentski grad
Sofia , Quarter Studentski Grad
High-class construction next to Simeonovsko Shosse Blvd. and Hristo Botev Hall
More properties in Quarter Studentski Grad
For sale
guaranteed rent
Spacious commercial premise with prestigious location
Sofia , Quarter Studentski Grad
Property suitable for shop or office with excellent business potential opposite the Univeristy of Natonal and World Economy
Spacious commercial premise with prestigious location - Property suitable for shop or office with excellent business potential opposite the Univeristy of Natonal and World Economy
For rent
Large office with two parking spaces in the Studentski Grad quarter
Sofia , Quarter Studentski Grad
for rent - apartment
Large office with two parking spaces in the Studentski Grad quarter - for rent - apartment
More properties in Sofia
For sale
best bargain
Spacious apartment with a private garden and parking space in Boyana district
Sofia , Quarter Boyana
New home with three bedrooms, a study, and southwest exposure in a boutique building
Spacious apartment with a private garden and parking space in Boyana district - New home with three bedrooms, a study, and southwest exposure in a boutique building
For sale
SOLE AGENTBestseller
Central Park – 7 buildings with a 12-decare private park. Buildings A, B, and V have received Act 16!
Sofia , Quarter Banishora
A unique residential complex inspired by the style and atmosphere of New York’s iconic Central Park. The best-selling residential complex for 2022, 2023, 2024, and 2025!
Central Park – 7 buildings with a 12-decare private park. Buildings A, B, and V have received Act 16! - A unique residential complex inspired by the style and atmosphere of New York’s iconic Central Park. The best-selling residential complex for 2022, 2023, 2024, and 2025!
For sale
SOLE AGENTBestseller
Luxury
SKY TOWERS by AMur — the new architectural symbol of Sofia
Sofia , Quarter Manastirski Livadi
Premium high-rise complex with panoramic views and uniquw location just between the city and Vitosha mountain
SKY TOWERS by AMur — the new architectural symbol of Sofia - Premium high-rise complex with panoramic views and uniquw location just between the city and Vitosha mountain
For sale
SOLE AGENT
Luxury
SYNERA Residence – New Homes in Manastirski Livadi - East
Sofia , Quarter Manastirski Livadi
A building that benefits from a great location and various city amenities nearby
SYNERA Residence – New Homes in Manastirski Livadi - East - A building that benefits from a great location and various city amenities nearby
For sale
SOLE AGENT
Luxury
Corner Park – Exclusive New Residential Development in Sofia, Suhata Reka
Sofia , Quarter Suhata Reka
Modern urban design, excellent location and flexible payment plans – your new home in Sofia
Corner Park – Exclusive New Residential Development in Sofia, Suhata Reka - Modern urban design, excellent location and flexible payment plans – your new home in Sofia
For sale
SOLE AGENT
Stylish new project in Malinova Dolina – modern apartments in a pleasant residential area
Sofia , Quarter Malinova Dolina
Modern comfort and investment security in the heart of Malinova Dolina district
Stylish new project in Malinova Dolina – modern apartments in a pleasant residential area - Modern comfort and investment security in the heart of Malinova Dolina district
For sale
SOLE AGENTBestseller
1- and 2-bedroom apartments near the National Sports Academy
Sofia , Quarter Malinova Dolina
New building with Act 15 and prime location in Malinova Dolina neighborhood
1- and 2-bedroom apartments near the National Sports Academy - New building with Act 15 and prime location in Malinova Dolina neighborhood
For sale
Apartments with central location next to Slivnitsa Blvd. with Act 14
Sofia , Quarter Center
Apartments with 1, 2 or 3 bedrooms in luxurious 9-storey building
Apartments with central location next to Slivnitsa Blvd. with Act 14 - Apartments with 1, 2 or 3 bedrooms in luxurious 9-storey building
For sale
New building with only 16 apartments in Manastirski livadi quarter - east
Sofia , Quarter Manastirski Livadi
Apartments with 2 or 3 bedrooms near Vitosha and with convenient connections to the center of the capital
New building with only 16 apartments in Manastirski livadi quarter - east - Apartments with 2 or 3 bedrooms near Vitosha and with convenient connections to the center of the capital
For sale
SOLE AGENT
Luxury urban complex of two buildings Green View Apartments in Kniazhevo district
Sofia , Quarter Knyazhevo
1- and 2-bedroom apartments, high-quality construction
Luxury urban complex of two buildings Green View Apartments in Kniazhevo district - 1- and 2-bedroom apartments, high-quality construction
For sale
SOLE AGENTBestseller
Vitosha View - an emblematic complex in Krastova Vada area
Sofia , Quarter Krustova Vada
Stylish apartments in a new residential complex with a great location. Perfect for investment!
Vitosha View - an emblematic complex in Krastova Vada area - Stylish apartments in a new residential complex with a great location. Perfect for investment!
from € 429 000
(€/sq.m. 2 618 - €/sq.m. 2 715)Area: 163.89 - 163.89 sq.m.
Magdalena Tosheva
Senior Estate Agent, Sofia
For sale
Luxury
Reina Sofia Residence - high-class housing, energy class A, near Zoo Sofia and Loven Park
Sofia , Quarter Krustova Vada
Last apartments in a complex with green areas and received Act 16
Reina Sofia Residence - high-class housing, energy class A, near Zoo Sofia and Loven Park - Last apartments in a complex with green areas and received Act 16
For sale
New building with two sections next to the National Sports Academy
Sofia , Quarter Malinova Dolina
New apartments with excellent location at the foot of Vitosha
New building with two sections next to the National Sports Academy - New apartments with excellent location at the foot of Vitosha
For sale
SOLE AGENTBestseller
Malinova Dolina Residential Complex - Apartments for Sale
Sofia , Quarter Malinova Dolina
Modern apartment complex with spacious layouts
Malinova Dolina Residential Complex - Apartments for Sale - Modern apartment complex with spacious layouts
from € 310 000
(€/sq.m. 1 863 - €/sq.m. 2 042)Area: 151.80 - 191.62 sq.m.
Magdalena Tsoklinova
Senior Estate Agent, Sofia
For sale
Apartment near Business Park Sofia
Sofia , Quarter Mladost 4
Apartments with 1, 2 and 3 bedrooms in a new complex with an excellent location in Mladost 4 district
Apartment near Business Park Sofia - Apartments with 1, 2 and 3 bedrooms in a new complex with an excellent location in Mladost 4 district
For rent
new
Luxury
Luxury 3-bedroom Apartment near Embassy of the United States
Sofia , Quarter Lozenets
Prestigious apartment with parking space
Luxury 3-bedroom Apartment near Embassy of the United States - Prestigious apartment with parking space
For sale
new
Luxury
High-class complex of 13 buildings with 30 decares of green areas and 9 children's playgrounds
Sofia , Quarter Hladilnika
Furnished, modern city apartments next to Loven Park, with convenient access to Vitosha metro station
High-class complex of 13 buildings with 30 decares of green areas and 9 children's playgrounds - Furnished, modern city apartments next to Loven Park, with convenient access to Vitosha metro station
For sale
new
Luxury
Luxurious Apartments for Sale in Hadji Dimitar, Sofia
Sofia , Quarter Hadji Dimitar
Luxurious apartment complex with prime location and excellent amenities
Luxurious Apartments for Sale in Hadji Dimitar, Sofia - Luxurious apartment complex with prime location and excellent amenities
For sale
new
Regulated Plot Near Future Metro Station in Levski District, Sofia
Sofia , Quarter Levski
Development land with strong investment potential near Vladimir Vazov Blvd
Regulated Plot Near Future Metro Station in Levski District, Sofia - Development land with strong investment potential near Vladimir Vazov Blvd
For rent
new
Luxury
Apartment for Rent with Two Parking Spaces in Manastirski Livadi
Sofia , Quarter Manastirski Livadi
Modern and spacious apartment in a well-connected area of Sofia
Apartment for Rent with Two Parking Spaces in Manastirski Livadi - Modern and spacious apartment in a well-connected area of Sofia
For sale
new
Luxury
Spacious 3-bedroom apartment with Act 14 in Hadji Dimitar district
Sofia , Quarter Hadji Dimitar
High-class construction 350 m from metro and within walking distance of the ideal center of the capital
Spacious 3-bedroom apartment with Act 14 in Hadji Dimitar district - High-class construction 350 m from metro and within walking distance of the ideal center of the capital
For rent
new
Luxury
Panoramic apartment with underground parking space in Krastova Vada district
Sofia , Quarter Krustova Vada
Modern 2-bedroom apartment with brand new furniture and appliances next to Cherni Vrah Blvd.
Panoramic apartment with underground parking space in Krastova Vada district - Modern 2-bedroom apartment with brand new furniture and appliances next to Cherni Vrah Blvd.
For sale
new
SOLE AGENT
best bargain
Spacious Two-Bedroom Apartment near Severen Park in Svoboda District
Sofia , Quarter Svoboda
Bright and functional home in a green and peaceful area of Sofia
Spacious Two-Bedroom Apartment near Severen Park in Svoboda District - Bright and functional home in a green and peaceful area of Sofia
For sale
new
Luxury
Spacious three-bedroom penthouse with Vitosha views
Sofia , Quarter Hladilnika
Modern duplex in a premium location near Paradise Center
Spacious three-bedroom penthouse with Vitosha views - Modern duplex in a premium location near Paradise Center
For sale
new
SOLE AGENT
Attractive Plot for Family Houses in Smardana Area, Lyulin
Sofia , Quarter Lyulin 6
Land near with utilities and excellent building parameters
Attractive Plot for Family Houses in Smardana Area, Lyulin - Land near with utilities and excellent building parameters
Subscribe to our channel