Spacious apartment, guaranteeing a comfortable and peaceful living environment with wonderful views of the Rhodope Mountains in a modern residential project with underground and ground floor garages and shops of a construction company with extensive experience and completed numerous projects. The residential complex has an excellent location in Hristo Smirnenski district - in a quiet, yet accessible and communicative location, close to a newly built park, stadium, bus stop. The area has excellent infrastructure.
The building has received Act 16 since the beginning of 2024.
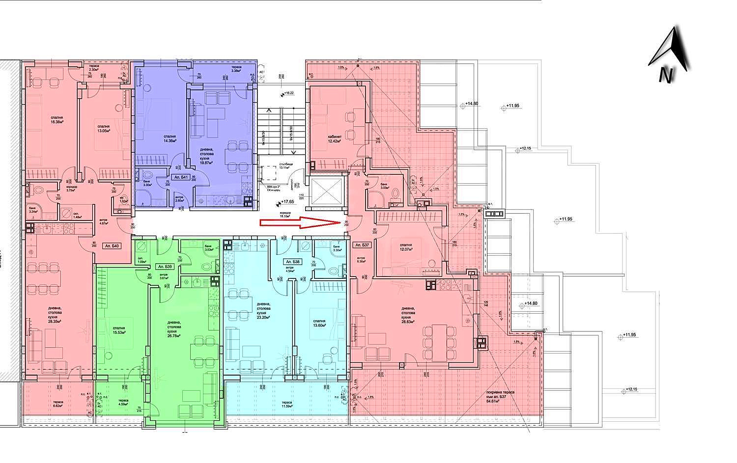
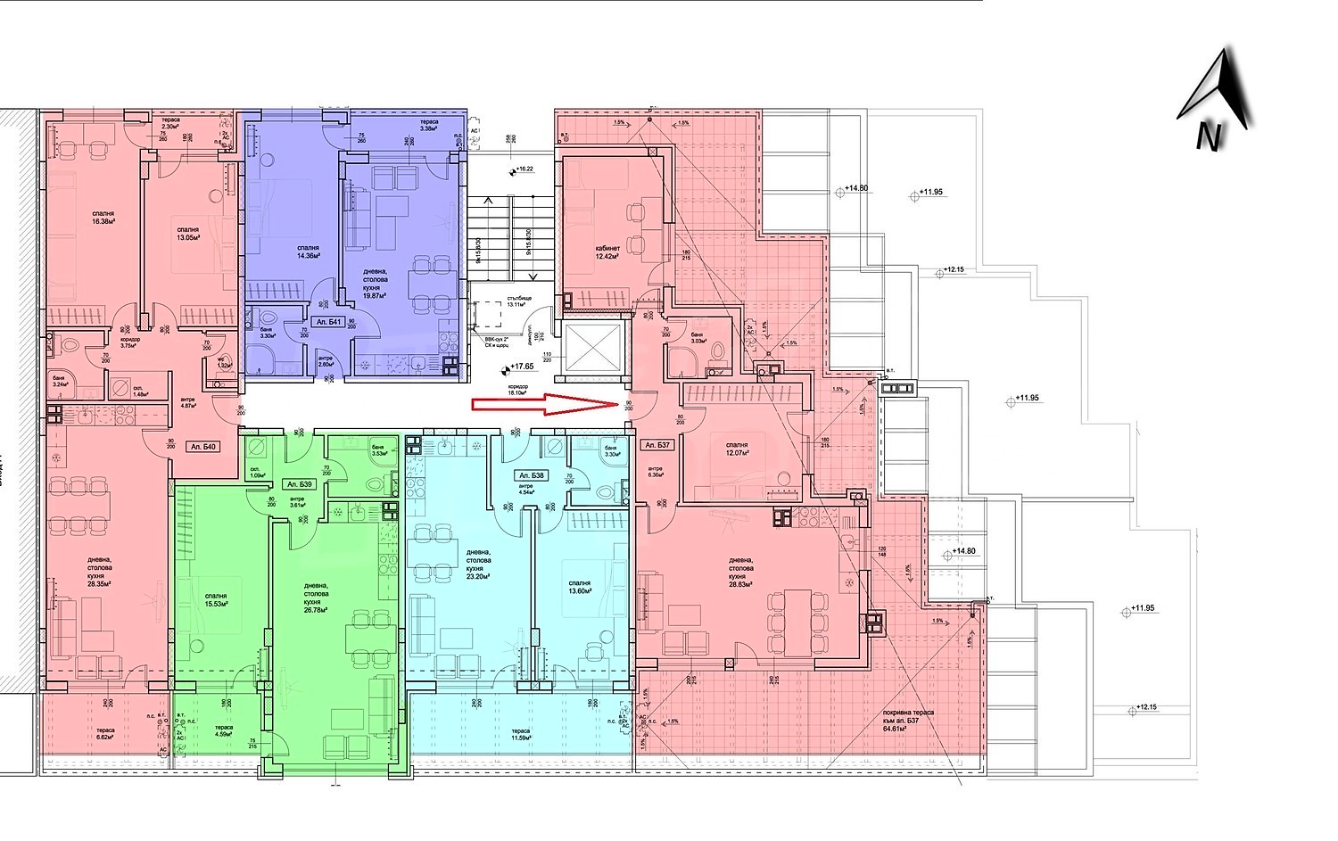
 The property is located on the seventh, top floor with a total area of 166.58 m2 (net area 78.32 sq. m. + common parts 14.96 sq. m., plus the terrace of 70.60 sq. m., plus basement of 2.70 sq. m. The apartment consists of:
- entrance hall
- living room with kitchenette
- two bedrooms
- bathroom with toilet
- large terrace with a wonderful view
The apartment is issued in the following form:
- Walls and ceilings - machine plaster.
- Floors - stucco.
- Bathrooms and toilets - walls and ceiling - machine plaster, floor - cement plaster.
- Plumbing - external connections, vertical and horizontal risers to plug, cold water meter;
- Electrical - external connection, main electrical panel, apartment electrical panel, internal wiring with fitted switches and sockets, bell installation and intercom system.
- Windows - PVC five-chamber in wood color.
- Front door - armored.
The complex consists of two twin buildings - A and B, each on seven levels - one underground with parking spaces and garages, ground floor with shops, garages and residential floors with a total of 92 apartments. On the ground floor of building A, a large room is planned which could be converted into a showroom or a grocery store, as the area is well developed and there are no such stores around.
View of the property
We can arrange a viewing of the property at your convenience. To do this, contact the broker responsible for the offer and tell him when you would like to view.
Reservation of the property
The property can be reserved and taken off the market with payment of a deposit, after which viewings with other buyers will cease and the preparation of the documents for a preliminary and final contract will begin. Please contact the responsible broker for this property for details of the purchase procedure and payment arrangements.
									
									
								Property features
										
											Type of property										
										
											2-bedroom apartment										
									
									
										
											Ref. No.										
										
											Plv 85920										
									
									
										
											Area										
										
											166.58 m2
										
									
																			
											
												Bedrooms											
											
												2											
										
																			
										
											Condition										
										
											Bulgarian standard										
									
									
																			
											
												Floor											
											
												7												 of 7											
										
																				
											
												Lift											
											
												yes											
										
																				
											
												Furnishing											
											
												Unfurnished											
										
																				
											
												Heating system											
											
												Air-conditioners											
										
																				
											
												Type of building											
											
												Brick-built, New building											
										
																				
											
												Garden											
											
												no											
										
																					
												
													Year of construction												
												
													2024												
											
																			
									More information about Two-bedroom apartment with a wonderful view in a new complex in Hristo Smirnenski:
																			
											
											Plans
										
										
																			
										Aerial Photos
									
									
																		
										
										Site plan
									
									
									
																		
										Panoramic view
									
									
									
									
									
										
										Info pack
									
									
							Reference number: Plv 85920
Location
Plovdiv, SmirnenskiLocal amenities
- Bus stop ""Komatevsko Shose"" - 298 m (4 min.) - Bus No: 1, 20, 27
 - School "OU "Zahari Stoyanov"" - 1.1 km (14 min.)
 - School - 1.1 km (14 min.)
 - Hospital "Evrohospital" - 242 m (3 min.)
 - Children's playground "hliab Bakery" - 547 m (7 min.)
 - Swimming pool - 751 m (10 min.)
 - Tennis court - 918 m (12 min.)
 - Car park - 182 m (3 min.)
 - Petrol station "Rompetrol" - 1.1 km (14 min.)
 - Church "Evangelska Seborna Shepka" - 1.2 km (15 min.)
 
PUBLIC TRANSPORT
EDUCATIONAL INSTITUTIONS
MEDICAL INSTITUTIONS
SPORTS & LEASURE
CAR SERVICES
PUBLIC BUILDINGS & INSTITUTIONS
REQUEST DETAILS
€ 169 600
- €
 - $
 - £
 
															We accept credit, debit cards & PayPal 
Online payments by virtual POS terminal
													Online payments by virtual POS terminal
Agency commission due
													
																																												   */ ?>
											
											
													FOR MORE INFORMATION
													Property ref: Plv 85920
													
												
											When calling, please quote the property reference number.
																					Stefan Mollov
Office Plovdiv Delovi Center Europe, 26, Petko Karavelov Str., floor 4, office 20, Plovdiv 4000, Bulgaria All properties (242)REQUEST DETAILS
More properties in Quarter Smirnenski
														
															For sale
																													
														
														
															Furnished one-bedroom apartment with a large terrace near the Rowing Base														
														
															 Plovdiv															, Quarter Smirnenski														
														
															Home with an excellent location and cozy atmosphere in Plovdiv														
														
															Furnished one-bedroom apartment with a large terrace near the Rowing Base - Home with an excellent location and cozy atmosphere in Plovdiv														
													
												
														
															For sale
																													
														
														
															Residential complex with two blocks and excellent location in the town of Plovdiv														
														
															 Plovdiv															, Quarter Smirnenski														
														
															Apartments in a modern complex in Hristo Smirnenski district														
														
															Residential complex with two blocks and excellent location in the town of Plovdiv - Apartments in a modern complex in Hristo Smirnenski district														
													
												
														
															For sale
																													
														
														
															Residential building with modern architecture in  Hristo Smirnenski district														
														
															 Plovdiv															, Quarter Smirnenski														
														
															9-storey building with a variety of 1, 2 and 3-bedroom apartments														
														
															Residential building with modern architecture in  Hristo Smirnenski district - 9-storey building with a variety of 1, 2 and 3-bedroom apartments														
													
												
														
															For sale
																													
														
														
															A new residential building in the quarter Smirnenski near the Rowing Base														
														
															 Plovdiv															, Quarter Smirnenski														
														
															Apartments at Peshtersko Shose, Plovdiv														
														
															A new residential building in the quarter Smirnenski near the Rowing Base - Apartments at Peshtersko Shose, Plovdiv														
													
												
														
															For sale
																													
														
														
															Newly-built apartment in luxury building in Hristo Smirnenski district														
														
															 Plovdiv															, Quarter Smirnenski														
														
															Modern studio on Peshtersko Shose Blvd. near the center of Plovdiv														
														
															Newly-built apartment in luxury building in Hristo Smirnenski district - Modern studio on Peshtersko Shose Blvd. near the center of Plovdiv														
													
												
														
															For sale
																													
														
															
																																													
															
																
																	Luxury																
															
															
															
															
															
														
																													
														
															New 1-bedroom apartment with parking space next to the Rowing base														
														
															 Plovdiv															, Quarter Smirnenski														
														
															Modern, fully furnished apartment in a small boutique building in the preferred Smirnenski district														
														
															New 1-bedroom apartment with parking space next to the Rowing base - Modern, fully furnished apartment in a small boutique building in the preferred Smirnenski district														
													
												
														
															For sale
																													
														
														
															Comfortable 2-bedroom apartment with Act 16 in Hristo Smirnenski district														
														
															 Plovdiv															, Quarter Smirnenski														
														
															Luxury new apartment next to new park, stadium, modern hospital, bus stop														
														
															Comfortable 2-bedroom apartment with Act 16 in Hristo Smirnenski district - Luxury new apartment next to new park, stadium, modern hospital, bus stop														
													
												
														
															For sale
																													
														
														
															Studio in a new project in Hristo Smirnenski area														
														
															 Plovdiv															, Quarter Smirnenski														
														
															Property in a project with stylish vision and great potential														
														
															Studio in a new project in Hristo Smirnenski area - Property in a project with stylish vision and great potential														
													
												
														
															For sale
																													
														
															
																																													
															
																
																	Luxury																
															
															
															
															
															
														
																											
													
														
															Luxury residential complex with Act 16 next to the Rowing Base in Plovdiv														
														
															 Plovdiv															, Quarter Smirnenski														
														
															Choice of newly built apartments in Park Recreation and Culture														
														
															Luxury residential complex with Act 16 next to the Rowing Base in Plovdiv - Choice of newly built apartments in Park Recreation and Culture														
													
												
														
															For rent
																													
														
														
															Modern office with top location in Hristo Smirnenski district														
														
															 Plovdiv															, Quarter Smirnenski														
														
															Floor of a business building with two separate entrances opposite Mall Plovdiv														
														
															Modern office with top location in Hristo Smirnenski district - Floor of a business building with two separate entrances opposite Mall Plovdiv														
													
												
														
															For rent
																													
														
														
															Commercial object for rent in Hristo Smirnenski														
														
															 Plovdiv															, Quarter Smirnenski														
														
															Shop on 3 levels with 30 m facing the street														
														
															Commercial object for rent in Hristo Smirnenski - Shop on 3 levels with 30 m facing the street														
													
												
														
															For sale
																													
														
														
															3-bedroom apartment next to Park Recreation and Culture and the Rowing canal														
														
															 Plovdiv															, Quarter Smirnenski														
														
															New dwelling with Permission for use in Hristo Smirnenski district														
														
															3-bedroom apartment next to Park Recreation and Culture and the Rowing canal - New dwelling with Permission for use in Hristo Smirnenski district														
													
												
														
															For sale
																													
														
														
															Cozy 3-storey hotel in Smirnenski district of Plovdiv														
														
															 Plovdiv															, Quarter Smirnenski														
														
															Developed, year-round operating business with garden, reception, lobby bar and private parking lot														
														
															Cozy 3-storey hotel in Smirnenski district of Plovdiv - Developed, year-round operating business with garden, reception, lobby bar and private parking lot														
													
												
														
															For sale
																													
														
														
															Furnished tavern in Hristo Smirnenski quarter														
														
															 Plovdiv															, Quarter Smirnenski														
														
															for sale - restaurant, bar														
														
															Furnished tavern in Hristo Smirnenski quarter - for sale - restaurant, bar														
													
												More properties in Plovdiv
													
														For sale
																											
													
																													
																new															
															
																																										
														
														
														
														
														
													
																											
													
														2-Bedroom Apartment in a New Building in Karshiyaka District													
													
														 Plovdiv														, Quarter Kurshiyaka													
													
														Property Near Aquapark Saint Petersburg													
													
														2-Bedroom Apartment in a New Building in Karshiyaka District - Property Near Aquapark Saint Petersburg													
												
											
													
														For rent
																											
													
																													
																new															
															
																																										
														
														
														
														
														
													
																									
												
													
														Retail Space for Rent in the Heart of Plovdiv – Next to the Ancient Theatre and Main Pedestrian Street													
													
														 Plovdiv														, Quarter Center													
													
														Fully renovated commercial unit in a premium location with high daily foot traffic													
													
														Retail Space for Rent in the Heart of Plovdiv – Next to the Ancient Theatre and Main Pedestrian Street - Fully renovated commercial unit in a premium location with high daily foot traffic													
												
											
													
														For rent
																											
													
																													
																new															
															
																																										
														
														
														
														
														
													
																									
												
													
														Luxury Two-Bedroom Apartment for Rent in Kyuchuk Paris, Plovdiv													
													
														 Plovdiv														, Quarter Kyuchuk Parij													
													
														Modern, fully equipped home in a premium residential building – first tenants													
													
														Luxury Two-Bedroom Apartment for Rent in Kyuchuk Paris, Plovdiv - Modern, fully equipped home in a premium residential building – first tenants													
												
											
													
														For sale
																											
													
													
														Residential building with shops, garages and parking spaces in Gagarin quarter													
													
														 Plovdiv														, Quarter Gagarin													
													
														Modern apartments combining comfort and coziness near the center of Plovdiv													
													
														Residential building with shops, garages and parking spaces in Gagarin quarter - Modern apartments combining comfort and coziness near the center of Plovdiv													
												
											
													
														For sale
																											
													
														
																																										
														
																													Promo
														
														
														
														
													
																											
													
														Modern complex in one of the most preferred areas of the town of Plovdiv													
													
														 Plovdiv														, Quarter Trakiya													
													
														A wide choice of apartments - from cozy studios to spacious 2-bedroom apartments in Trakia district													
													
														Modern complex in one of the most preferred areas of the town of Plovdiv - A wide choice of apartments - from cozy studios to spacious 2-bedroom apartments in Trakia district													
												
											
													
														For sale
																											
													
													
														Modern complex with 4 buildings close to the center of Plovdiv													
													
														 Plovdiv														, Quarter Gagarin													
													
														Apartments with 1, 2, 3 bedrooms and studios in a new complex on Severen Blvd. 													
													
														Modern complex with 4 buildings close to the center of Plovdiv - Apartments with 1, 2, 3 bedrooms and studios in a new complex on Severen Blvd. 													
												
											
													
														For sale
																											
													
													
														Shop on busy boulevard in the center of Plovdiv													
													
														 Plovdiv														, Quarter Center													
													
														Property with potential suitable for shop, office, fitness, showroom													
													
														Shop on busy boulevard in the center of Plovdiv - Property with potential suitable for shop, office, fitness, showroom													
												
											
													
														For sale
																											
													
													
														Furnished one-bedroom apartment with a large terrace near the Rowing Base													
													
														 Plovdiv														, Quarter Smirnenski													
													
														Home with an excellent location and cozy atmosphere in Plovdiv													
													
														Furnished one-bedroom apartment with a large terrace near the Rowing Base - Home with an excellent location and cozy atmosphere in Plovdiv													
												
											
													
														For sale
																											
													
													
														House with Garden and Summer Kitchen in Parvomay – Only 40 km from Plovdiv													
													
														 Parvomay																											
													
														South-facing, large garden, garage and great potential for a family home													
													
														House with Garden and Summer Kitchen in Parvomay – Only 40 km from Plovdiv - South-facing, large garden, garage and great potential for a family home													
												
											
													
														For rent
																											
													
													
														Modern office in one of the most prestigious and communicative areas of Plovdiv													
													
														 Plovdiv														, Quarter Center													
													
														Excellent business property in close proximity to "Paisii Hilendarski" Plovdiv University													
													
														Modern office in one of the most prestigious and communicative areas of Plovdiv - Excellent business property in close proximity to "Paisii Hilendarski" Plovdiv University													
												
											
													
														For rent
																											
													
													
														Brand new one-bedroom apartment for rent near Lauta Park													
													
														 Plovdiv														, Quarter Trakiya													
													
														Furnished apartment in a high-end building with an excellent location in Plovdiv													
													
														Brand new one-bedroom apartment for rent near Lauta Park - Furnished apartment in a high-end building with an excellent location in Plovdiv													
												
											
													
														For sale
																											
													
													
														New 1-bedroom apartment in preferred district of Plovdiv													
													
														 Plovdiv														, Quarter Yuzhen													
													
														Comfortable apartment in a fast-growing area in the cultural capital													
													
														New 1-bedroom apartment in preferred district of Plovdiv - Comfortable apartment in a fast-growing area in the cultural capital													
												
											
													
														For sale
																											
													
													
														Residential complex with two blocks and excellent location in the town of Plovdiv													
													
														 Plovdiv														, Quarter Smirnenski													
													
														Apartments in a modern complex in Hristo Smirnenski district													
													
														Residential complex with two blocks and excellent location in the town of Plovdiv - Apartments in a modern complex in Hristo Smirnenski district													
												
											
													
														For sale
																											
													
													
														Residential building with modern architecture in  Hristo Smirnenski district													
													
														 Plovdiv														, Quarter Smirnenski													
													
														9-storey building with a variety of 1, 2 and 3-bedroom apartments													
													
														Residential building with modern architecture in  Hristo Smirnenski district - 9-storey building with a variety of 1, 2 and 3-bedroom apartments													
												
											
													
														For sale
																											
													
													
														A new residential building in the quarter Smirnenski near the Rowing Base													
													
														 Plovdiv														, Quarter Smirnenski													
													
														Apartments at Peshtersko Shose, Plovdiv													
													
														A new residential building in the quarter Smirnenski near the Rowing Base - Apartments at Peshtersko Shose, Plovdiv													
												
											
													
														For sale
																											
													
													
														New apartments with beautiful views in Yuzhen district													
													
														 Plovdiv														, Quarter Yuzhen													
													
														Studios, one and two bedroom apartments in a quiet place in a fast-growing area of Plovdiv													
													
														New apartments with beautiful views in Yuzhen district - Studios, one and two bedroom apartments in a quiet place in a fast-growing area of Plovdiv													
												
											
													
														For sale
																											
													
														
																																										
														
															
																Luxury															
														
														
														
														
														
													
																											
													
														Two bedroom apartment with Act 16 next to Park Hotel St. Petersburg													
													
														 Plovdiv														, Quarter Kurshiyaka													
													
														Newly built property with modern design													
													
														Two bedroom apartment with Act 16 next to Park Hotel St. Petersburg - Newly built property with modern design													
												
											
													
														For sale
																											
													
													
														1-bedroom apartment next to Aquapark St. Petersburg													
													
														 Plovdiv														, Quarter Kurshiyaka													
													
														New apartment high-quality construction in Plovdiv													
													
														1-bedroom apartment next to Aquapark St. Petersburg - New apartment high-quality construction in Plovdiv													
												
											
													
														For sale
																											
													
													
														New residential complex in the Ostromila district													
													
														 Plovdiv														, Quarter Ostromila													
													
														Comfortable apartments in a convenient location in Plovdiv													
													
														New residential complex in the Ostromila district - Comfortable apartments in a convenient location in Plovdiv													
												
											
													
														For sale
																											
													
														
																																										
														
															
																Luxury															
														
														
														
														
														
													
																											
													
														Casa Moderna - a home that impresses at first sight!													
													
														 Plovdiv														, Quarter Ostromila													
													
														Home in a gated complex with amenities in a quiet and cozy place with modern infrastructure 													
													
														Casa Moderna - a home that impresses at first sight! - Home in a gated complex with amenities in a quiet and cozy place with modern infrastructure 													
												
											
													
														For sale
																											
													
													
														1- and 2-bedroom apartments in the green quarter Belomorski													
													
														 Plovdiv														, Quarter Belomorski													
													
														Four-storey buildings with quiet location in fast-growing area with new, modern construction													
													
														1- and 2-bedroom apartments in the green quarter Belomorski - Four-storey buildings with quiet location in fast-growing area with new, modern construction													
												
											
													
														For sale
																											
													
														
														SOLE AGENT																												
														
														
														
														
														
													
																											
													
														South apartment in new building  													
													
														 Plovdiv														, Quarter Yuzhen													
													
														One-bedroom apartment with cellar in Yuzhen district
													
													
														South apartment in new building   - One-bedroom apartment with cellar in Yuzhen district
													
												
											
													
														For sale
																											
													
													
														Land Plot with Road Access near Asenovgrad Highway													
													
														 Asenovgrad														, Dolni Voden													
													
														Investment Opportunity – Dual Road Access and Development Potential													
													
														Land Plot with Road Access near Asenovgrad Highway - Investment Opportunity – Dual Road Access and Development Potential													
												
											
													
														For sale
																											
													
													
														Land near Plovdiv													
													
														 Brestnik																											
													
														Large land property in an area with potential for investment													
													
														Land near Plovdiv - Large land property in an area with potential for investment													
												
											
													
														For sale
																											
													
													
														Newly-built apartment in luxury building in Hristo Smirnenski district													
													
														 Plovdiv														, Quarter Smirnenski													
													
														Modern studio on Peshtersko Shose Blvd. near the center of Plovdiv													
													
														Newly-built apartment in luxury building in Hristo Smirnenski district - Modern studio on Peshtersko Shose Blvd. near the center of Plovdiv													
												
											
						
						Subscribe to our channel