Looking for a new home in Sofia with an optimal start-up period and a convenient payment scheme – then check out this building.
Area with regular public transport to the central part of the capital, next to one of the main streets of the city. The project includes 25 apartments, warehouses, underground and ground parking lots and garages.
The area is preferred for living due to its central location, the proximity to all communications and city amenities while being a quiet one.
Choose your home or property for investment between the available 1-bedroom, 2-bedroom and 3-bedroom apartments.
Characteristics of the building:
• Monolithic reinforced concrete structure, dimensioned to earthquake
• Provided thermal, hydro and noise insulation
• Installations filled with certified materials from reputable manufacturers
• Representative common areas with modern washable interior plasters in warm colours and flooring on stairs and corridors of natural granite
A warehouse, a garage or a parking space can be purchased additionally. The common parts are calculated at a price of 675 Euro / sq.m.
The apartments are offered with a degree of completion:
• walls - ground coat
• floor - cement screed
• heating - electricity
• PVC windows
• external doors
The construction is run by an experienced builder, with high-end building materials from proven manufacturers.
The offered dwellings are an optimal solution for people who want to buy a new apartment in a well-developed area with good infrastructure, close to a bus stop, university and all city amenities. There are also supermarkets, shops and shopping centres, pharmacies, polyclinics, restaurants, cafés, public transport stops that make the access to every point of the city easy and convenient.
Why buy an apartment in this building?
• Good metropolitan area, near the centre of Sofia
• Quality building materials
• Competitive prices for new construction in the area
• Choice of 1-bedroom, 2-bedroom and 3-bedroom apartments
• Convenient payment schedule
Viewings
We are ready to organize a viewing of this property at a time convenient for you. Please contact the responsible estate agent and inform them when you would like to have viewings arranged. We can also help you with flight tickets and hotel booking, as well as with travel insurance.
Property reservation
You can reserve this property with a non-refundable deposit of 2,000 Euro, payable by credit card or by bank transfer to our company bank account. After receiving the deposit the property will be marked as reserved, no further viewings will be carried out with other potential buyers, and we will start the preparation of the necessary documents for completion of the deal. Please contact the responsible estate agent for more information about the purchase procedure and the payment methods.
After sale services
We are a reputable company with many years of experience in the real estate business. Thus, we will be with you not only during the purchase process, but also after the deal is completed, providing you with a wide range of additional services tailored to your requirements and needs, so that you can fully enjoy your property in Bulgaria. The after sale services we offer include property insurance, construction and repair works, furnishing, accounting and legal assistance, renewal of contracts for electricity, water, telephone and many more.
Invalid offer
SOLD
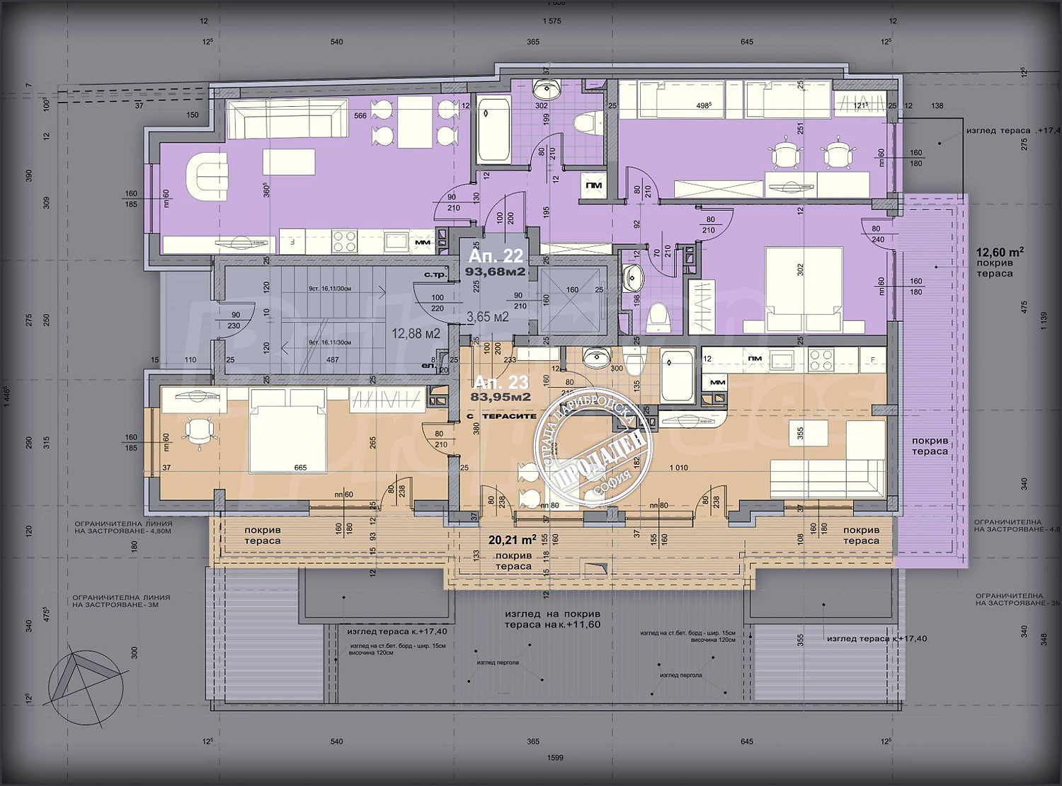
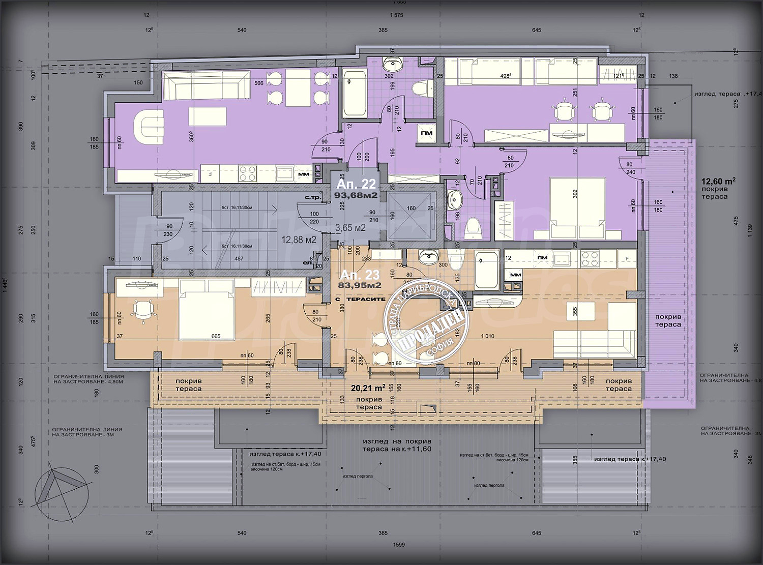
New Building in the Capital Zona B 18 District
Sofia, Zona B-18One-bedroom, 2-bedroom and 3-bedroom dwellings in high-rise building
Property features
Type of property
Apartments (various types), Studios, 1-bedroom apartments, 2-bedroom apartments, Garages
Ref. No.
Sfa 70699
Area
47.44 m2 (net area: 36 m2 plus common parts: 11.44 m2)
Condition
Bulgarian standard
Floor
4 of 9
Lift
Yes
Furnishing
Unfurnished
Heating system
Air-conditioners
Type of building
Brick-built, New building
Garden
read text
Year of construction
2019
Location
Sofia, Zona B-18REQUEST DETAILS ABOUT PRICES, PLANS & VIEWING
This offer is not valid
Please contact us and we will find other properties that match your requirements.
This offer is not valid
Please contact us and we will find other properties that match your requirements.
FOR MORE INFORMATION
Property ref: Sfa 70699
When calling, please quote the property reference number.