Small building within walking distance from convenient stops of all kinds of public transport and metro. 
The building offers a limited number of 2-bedroom apartments. Modern nice architecture, quality embedded building materials and optimal completion times. The construction has begun, the expected completion with Act 16-Permission for Use is in June 2020.
Wonderful choice for a family home in an arranged neighbourhood of the capital. Excellent distribution of living space. No commission from the buyer for agency customers.
The building has a façade facing east, west, north and south. It is envisaged to be completed with a monolithic reinforced concrete structure, which is in compliance with the applicable normative requirements. All masonry is provided with a high-quality red brick Wienerberger.
Degree of completion of the apartments and common areas:
• Walls and ceilings - gypsum plaster
• Floors - cement screed
• Windows - PVC joinery - 5-chamber profile, with double glazing - 24mm, with white float "K" glass, 50% opening
• Entrance door - fireproof according to the approved design
• Bathrooms and toilets - walls - lime plaster
• Terraces and balconies - floor - granite tiles
• Staircase - walls - latex painting; stairs - granite; elevator with automatic doors, photocells for stairs lighting
• Basement - walls - lime plaster, floor - cement mortar, metal door
• Façade - with thermal insulation and polymeric silicate plaster, railings - glass
• Heating installation - aluminium radiators; horizontal connections with polyethylene pipes, equipped subscriber station with connection to external heat pipe
• Plumbing installations - fully constructed with polypropylene plumbing pipes according to design, up to plug, sewage pipelines, built-in external connections to the street water supply and sewerage
• El. Installation - internal: double-rate electric meter with common clock, apartment electric panel, telephone, security, intercom and cable TV, bell and earthling installations, external connections with GRT (mainly switchboard)
• The external connections to the street sewerage and the water supply network, as well as to the power supply network will be built according to the approved projects and the contracts with the operating companies
Transport:
• Tramways - 1, 6, 7, 9, 11, 12, 14, 19;
• Buses - 77, 81, 85, 86, 150, 309, 310
• Trolleybuses - 1, 5, 6
• Knyaginia Maria Louisa Metro Station
The neighbourhood is located to the north-west from the centre of the capital. Banishora is the area closest to Central Station and Central Bus Station - Sofia.
Why buy an apartment in this building?
• Location with excellent transport links and infrastructure
• Functional distribution of the apartments
• Area with easy access to all districts of Sofia
• High-quality construction, proven builder
Viewings
We are ready to organize a viewing of this property at a time convenient for you. Please contact the responsible estate agent and inform them when you would like to have viewings arranged. We can also help you with flight tickets and hotel booking, as well as with travel insurance.
Property reservation
You can reserve this property with a non-refundable deposit of 2,000 Euro, payable by credit card or by bank transfer to our company bank account. After receiving the deposit the property will be marked as reserved, no further viewings will be carried out with other potential buyers, and we will start the preparation of the necessary documents for completion of the deal. Please contact the responsible estate agent for more information about the purchase procedure and the payment methods.
After sale services 
We are a reputable company with many years of experience in the real estate business. Thus, we will be with you not only during the purchase process, but also after the deal is completed, providing you with a wide range of additional services tailored to your requirements and needs, so that you can fully enjoy your property in Bulgaria. The after sale services we offer include property insurance, construction and repair works, furnishing, accounting and legal assistance, renewal of contracts for electricity, water, telephone and many more.
									
									
								
																			For sale
									
									
									
																											
									
									
									
									
										Invalid offer
									
									
								
								
								
								
								
								Two-bedroom Apartments in a New Building in Banishora Quarter
Sofia, BanishoraTwo-bedroom apartments in a small building near Opalchenska Street
Property features
										
											Type of property										
										
											Apartments (various types), 2-bedroom apartments, Garages										
									
									
										
											Ref. No.										
										
											Sfa 70232										
									
									
										
											Area										
										
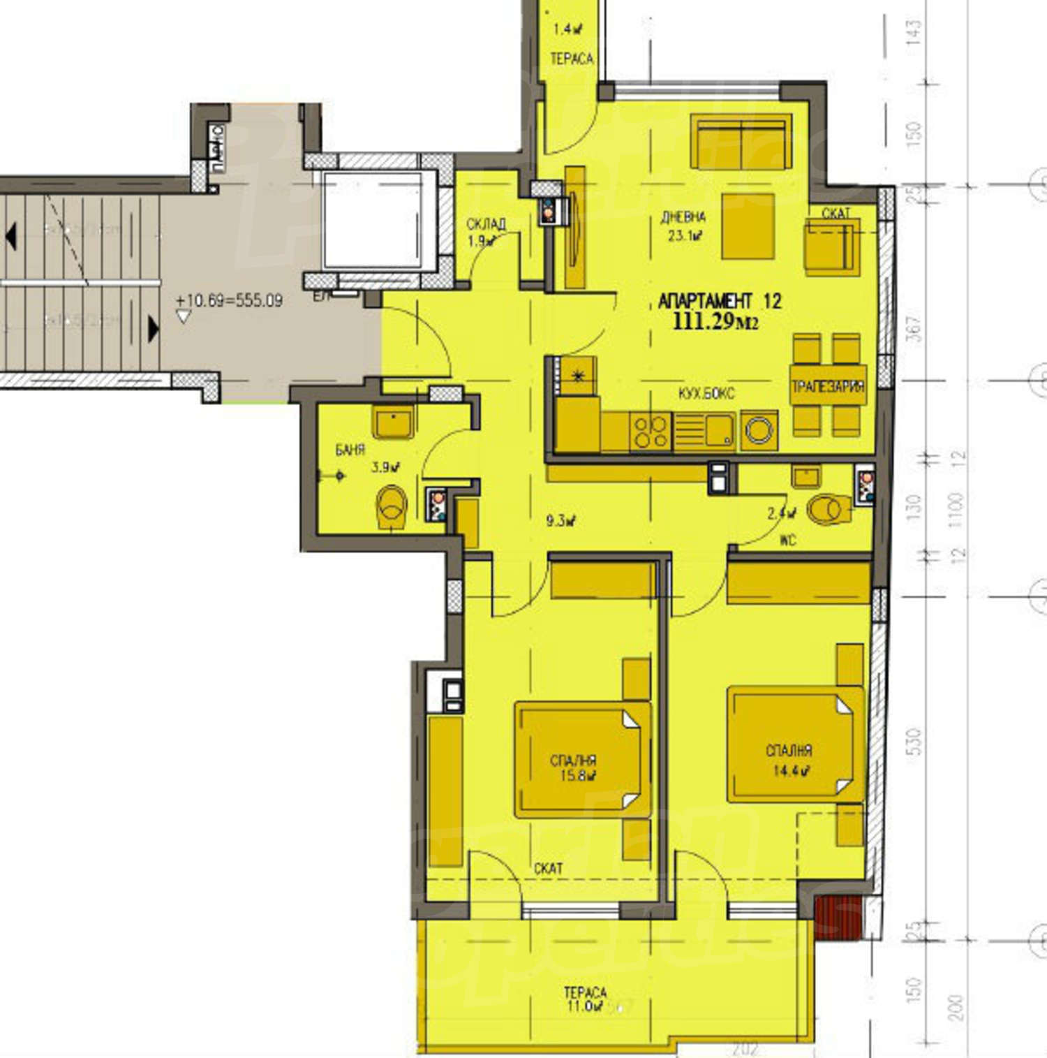
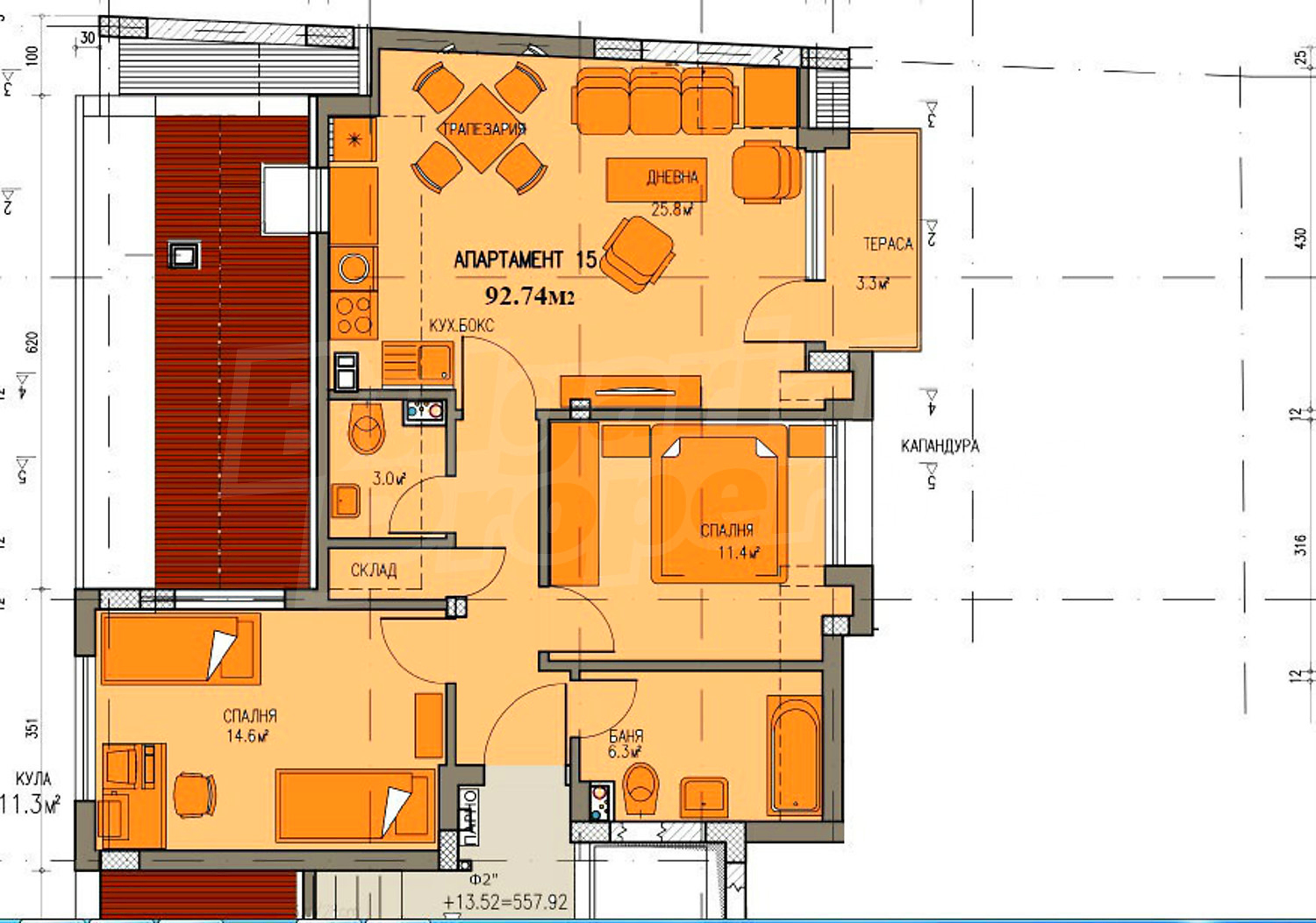
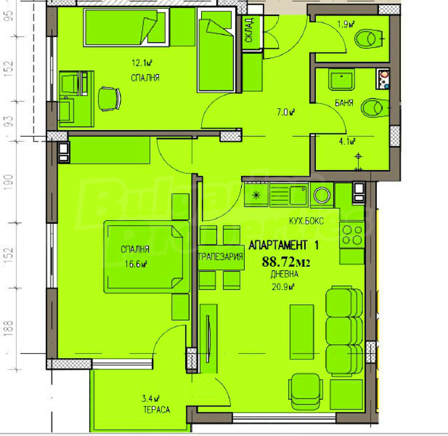
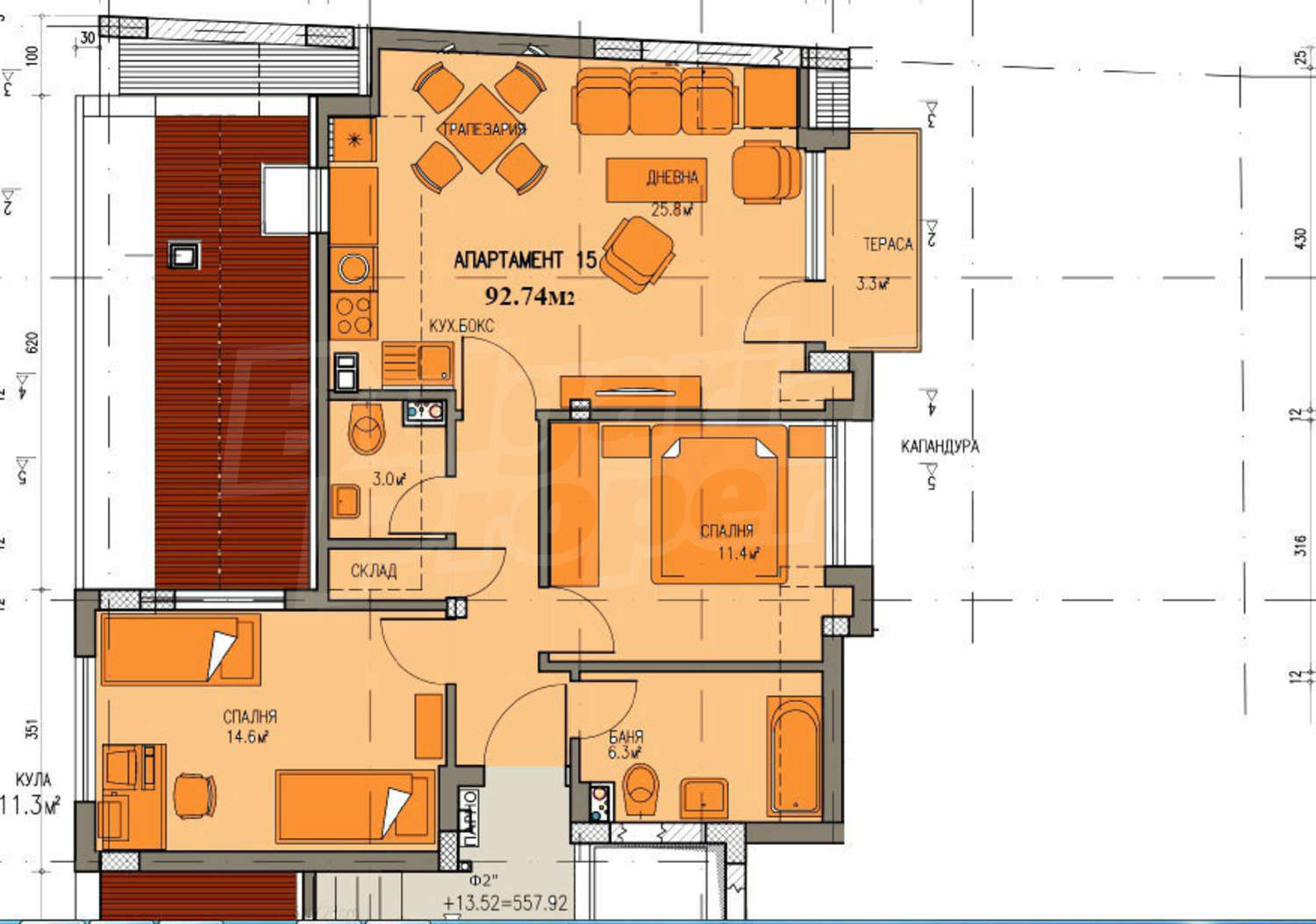
											90.14 m2 (net area: 76.3 m2 plus common parts: 13.84 m2)
										
									
																			
											
												Bedrooms											
											
												2											
										
																			
										
											Condition										
										
											Bulgarian standard										
									
																			
											
												Floor											
											
												1												 of 5											
										
																				
											
												Lift											
											
												Yes											
										
																				
											
												Furnishing											
											
												Unfurnished											
										
																				
											
												Heating system											
											
												Central heating											
										
																				
											
												Type of building											
											
												Reinforced concrete structure, Brick-built, New building											
										
																				
											
												Garden											
											
												no											
										
																					
												
													Year of construction												
												
													2020												
											
											
								Location
Sofia, BanishoraREQUEST DETAILS ABOUT PRICES, PLANS & VIEWING
										This offer is not valid
										
																Please contact us and we will find other properties that match your requirements.
												This offer is not valid
												
																				Please contact us and we will find other properties that match your requirements.
											FOR MORE INFORMATION
											Property ref: Sfa 70232
											
										
									When calling, please quote the property reference number.